Estimate your costs based on your location and materials.
Yes! This plan can be customized—contact us for a free quote.
Yes! This plan can be customized—contact us for a free quote.
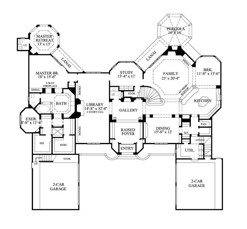
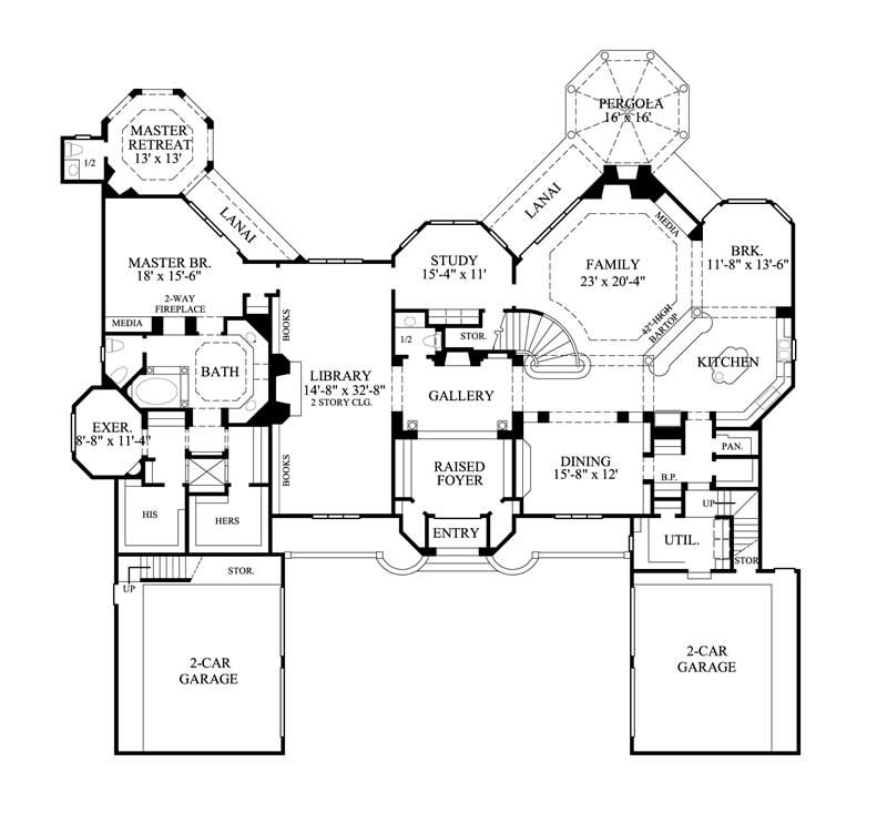
This luxury home plan style is of classic French and European home design. The raised foyer funnels into an elegant gallery room with a cozy fireplace to make this house a home. The right side of these Luxury plans where the kitchen and family room are located is a large open space for entertaining. Then moving into the middle area of the home where the study, library, and gallery are located gives you some space for your personal enjoyment to relax and read or listen to your favorite classical music. Along the left side is the master hideaway that...
Estimate your costs based on your location and materials.
All sales of house plans, modifications, and other products found on this site are final. No refunds or exchanges can be given once your order has begun the fulfillment process. Please see our Policies for additional information.
All plans offered on ThePlanCollection.com are designed to conform to the local building codes when and where the original plan was drawn.
The homes as shown in photographs and renderings may differ from the actual blueprints. For more detailed information, please review the floor plan images herein carefully.
Estimate your costs based on your location and materials.
