Estimate your costs based on your location and materials.
Yes! This plan can be customized—contact us for a free quote.
Yes! This plan can be customized—contact us for a free quote.
CAD files may take up to 3 business days to receive - please contact us for availability.
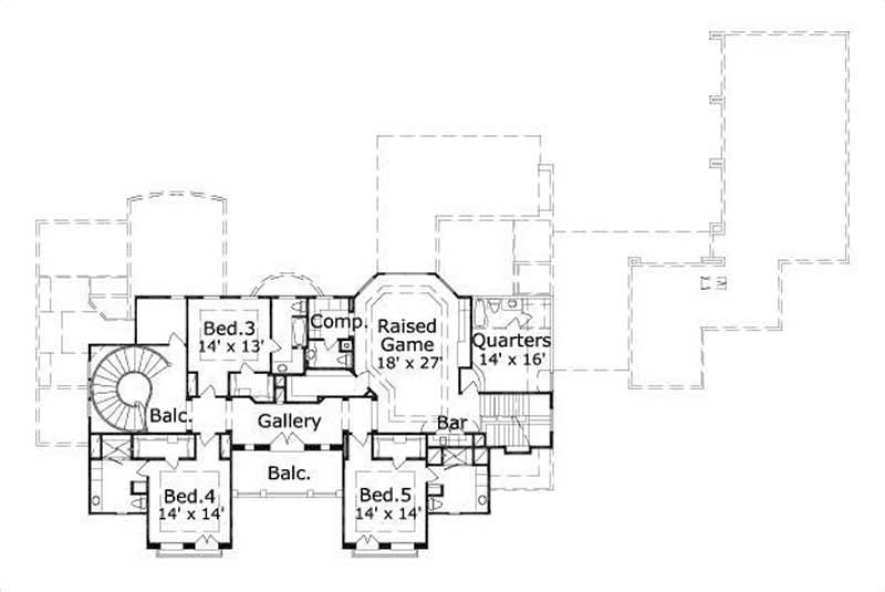
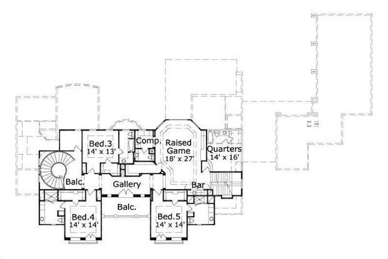
This luxury house plan is fit for a king! The floor plan includes a main level laundry room, main level master suite, living and dining areas, and a 3 car garage. The second floor plan has an awesome balcony facing the front, providing you as the owner with breathtaking views of the surrounding countryside.
Estimate your costs based on your location and materials.
All sales of house plans, modifications, and other products found on this site are final. No refunds or exchanges can be given once your order has begun the fulfillment process. Please see our Policies for additional information.
All plans offered on ThePlanCollection.com are designed to conform to the local building codes when and where the original plan was drawn.
The homes as shown in photographs and renderings may differ from the actual blueprints. For more detailed information, please review the floor plan images herein carefully.
Estimate your costs based on your location and materials.


