Estimate your costs based on your location and materials.
Yes! This plan can be customized—contact us for a free quote.


Yes! This plan can be customized—contact us for a free quote.
Please Note: There might be a 4-5 day delay in getting the sales orders out due to updates being made to the designer's plans.
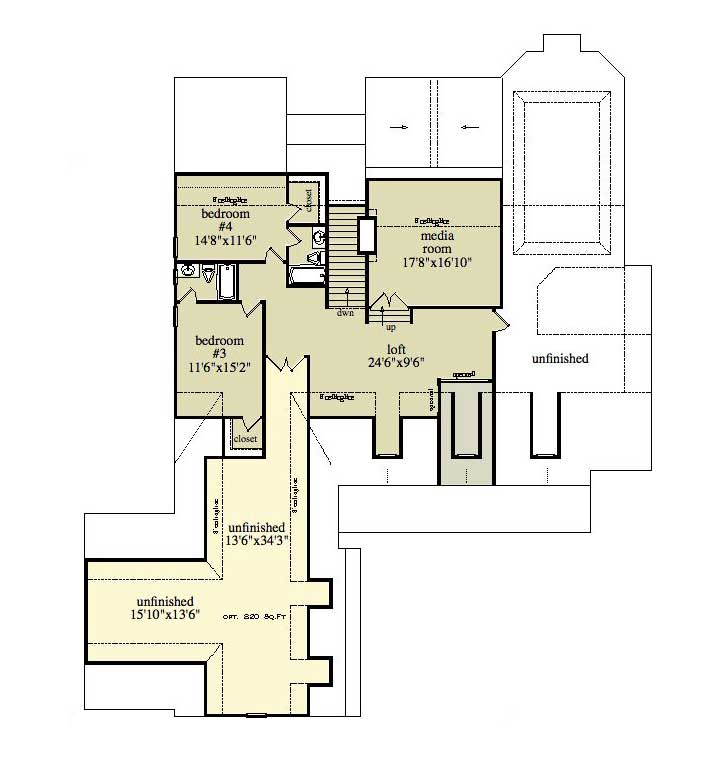
This irresistible country home boasts an inviting front porch and lots of windows. It has a courtyard-style garage parking for 2 cars and possibly an RV. The interior floor plan has a large formal dining room and a small, private study off the foyer. The great room has a built-in fireplace and opens to a beautiful and bright sunroom with lots of windows. The large kitchen opens to the breakfast room and has a generous island, microwave, and TV niche, a walk-in pantry, a separate freezer pantry that adjoins a cozy laundry room and second bedroom or office. The master suite is...
Estimate your costs based on your location and materials.
All sales of house plans, modifications, and other products found on this site are final. No refunds or exchanges can be given once your order has begun the fulfillment process. Please see our Policies for additional information.
All plans offered on ThePlanCollection.com are designed to conform to the local building codes when and where the original plan was drawn.
The homes as shown in photographs and renderings may differ from the actual blueprints. For more detailed information, please review the floor plan images herein carefully.
Estimate your costs based on your location and materials.


































