4-Bedroom, 4121 Sq Ft Country Plan with Peninsula/Eating Bar

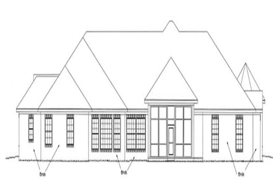
This image shows the front elevation of these Luxury House Plans, Traditional House Plans, Country House Plans, Ranch House Plans.

Images/Plans copyrighted by designer. Photos may reflect homeowner modifications.

About House Plan #178-1192

Sq Ft
4121
Sq Ft
Bedrooms
4
Bedrooms
Bathroom
4
Baths
Half Baths
0
Half Baths
Bedrooms
4
Cars
Bedrooms
1
Stories
Bedrooms
99' 10'
Width
Bedrooms
81
Depth
Starting at$2050.00What's included
STEP 1Bedrooms
STEP 2Bedrooms
STEP 3Bedrooms

Subtotal:$0
BedroomsBest Price Guaranteed
Plan Collection

How much will it cost to build?

Estimate your costs based on your location and materials.

Free Cost Instant Estimator

Floor Plans

FIRST FLOOR PLAN
FIRST FLOOR PLAN
Plan Collection

Can I modify this plan?

Yes! This plan can be customized—contact us for a free quote.

Additional Notes from Designer

Please Note: This plan comes standard with a Construction License that gives the original purchaser the right to build the plan as many times as you like. This designer does not provide concrete block or cinder block. PLEASE NOTE!! When purchasing a CAD file, the designer will also send the PDF. Duplex and Triplex Plans are Slab & 2x4 ONLY!! If you need to change either, please send in a modification request. This multi-family plan has two identical units. Each unit has 1,567 living square feet, 3 bedrooms, 2.5 baths, and 1 garage space.

House Plan Description

These House Plans are amazing! Everything you could ever want or need is all on one floor. The Study, Media Room, Mud Room, and Screened Porch are all some of the key features. But don't forget the master bedroom with a fireplace, walk-in closet, master bath, and in-home gym!

Home Details

Summary
Plan #:178-1192
Starting at:$2050.00
Floors:1
Bedrooms:4
Full Baths:4
Half Baths:0
Garage:
Square Footage
Heated Area:4121 Sq. Ft.
First Floor:4121 Sq. Ft.
Unheated Area:
Dimensions
Width:99' 10''
Architectural Styles
Exterior Wall Material
Vinyl SidingBrick
Roofing Type
Hip
Roofing Material
Asphalt Shingles
Special Feature
In Home GymFireplaceDining RoomMud RoomMain Level LaundryLibraryMedia RoomSplit BathroomVaulted Ceilings
Garage Type
Attached GarageSide Entry
Fireplaces
Two Fireplaces
Building Lot Type
Flat Site
Kitchen Features
Kitchen IslandNook/Breakfast AreaWalk-in PantryPeninsula/Eating BarEat-In Kitchen
Porches and Exterior Features
Covered Front PorchScreened Porch/Sunroom
Master Suite Features
Main Floor MasterFireplace in MasterMaster BathroomWalk In ClosetSitting Area

What’s Included

Most plan sets include the following:

icon text-secondary-400 includedFront elevation and construction notes

icon text-secondary-400 includedRear and side elevations

icon text-secondary-400 includedFloor plan, including electrical, window and door sizes, floor joist span directions, and ceiling type notes (9’ ceiling, vault, etc)

icon text-secondary-400 includedSecond-floor plan (if applicable) with the same info as shown on first-floor plan

icon text-secondary-400 includedTypical wall section

icon text-secondary-400 includedTypical foundation details

icon text-secondary-400 includedRoof plan showing roof pitches, ridges & valleys.

icon text-secondary-400 includedFoundation plan

icon text-secondary-400 includedFull building section

What’s Not Included

These items are  NOT included:

icon text-secondary-400 includedArchitectural or Engineering Stamp - handled locally if required.

icon text-secondary-400 includedSite Plan - handled locally when required.

icon text-secondary-400 includedMechanical Drawings (location of heating and air equipment and duct work) - your subcontractors handle this.

icon text-secondary-400 includedPlumbing Drawings (drawings showing the actual plumbing pipe sizes and locations) - your subcontractors handle this.

icon text-secondary-400 includedEnergy calculations - handled locally when required.

Related House Plans

Plan Collection
Plan Collection
Plan Collection
Plan#153-1095
Starting at$1850
3766
Sq Ft
1
Story
4
Bed
4
Bath
3
Car
Plan Collection
Plan Collection
Plan Collection
Plan#193-1091
Starting at$1850
3416
Sq Ft
1
Story
4
Bed
4
Bath
4
Car
Plan Collection
Plan Collection
Plan Collection
Plan#198-1117
Starting at$2795
3773
Sq Ft
1
Story
4
Bed
4.5
Bath
3
Car
View All

Other Plans By This Designer

Plan Collection
Plan Collection
Plan Collection
Plan#178-1175
Starting at$1045
1260
Sq Ft
1
Story
3
Bed
2
Bath
2
Car
Plan Collection
Plan Collection
Plan Collection
Plan#178-1345
Starting at$680
395
Sq Ft
1
Story
1
Bed
1
Bath
0
Car
Plan Collection
Plan Collection
Plan Collection
Plan#178-1096
Starting at$1155
2252
Sq Ft
2
Story
4
Bed
3
Bath
3
Car