Estimate your costs based on your location and materials.
Yes! This plan can be customized—contact us for a free quote.


Yes! This plan can be customized—contact us for a free quote.
Please Note: There might be a 4-5 day delay in getting the sales orders out due to updates being made to the designer's plans.
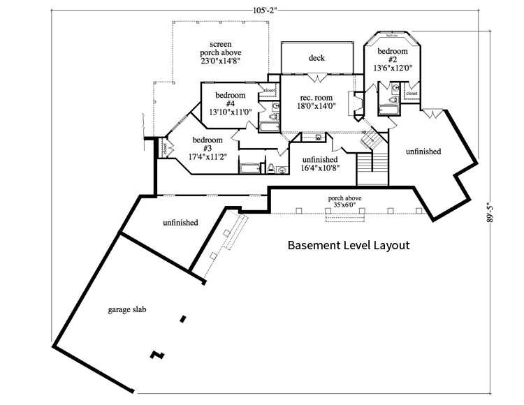
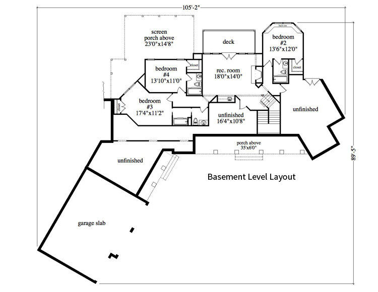
This lovely Craftsman style home plan with Vacation Homes influences (House Plan #163-1054) has 3763 square feet of living space. The 1 story floor plan includes 4 bedrooms.
The floor plan is bright and open with lots of windows along the back of the house to enable views of mountains, golf courses and lakes.
• Family room iwith fireplace and built-ins
• Large hitchen with an island, walk-in pantry, breakfast bar. and breakfast/sun room – and access to the grilling deck and screened...
Estimate your costs based on your location and materials.
All sales of house plans, modifications, and other products found on this site are final. No refunds or exchanges can be given once your order has begun the fulfillment process. Please see our Policies for additional information.
All plans offered on ThePlanCollection.com are designed to conform to the local building codes when and where the original plan was drawn.
The homes as shown in photographs and renderings may differ from the actual blueprints. For more detailed information, please review the floor plan images herein carefully.
Estimate your costs based on your location and materials.







