Estimate your costs based on your location and materials.
Yes! This plan can be customized—contact us for a free quote.

Yes! This plan can be customized—contact us for a free quote.
CAD files may take up to 3 business days to receive - please contact us for availability.
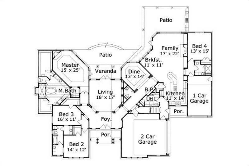
The 156-2325 house plan is a one level traditional style home.This house plan has 3854 total living square footage and also has 4 bedrooms and 3 baths along with a three car split garage. This house plan also has 2 living areas as well as 2 dining areas. This house plan features a bonus room, a coffe/juice bar, a covered rear porch, outdoor kitchen, theater/media, butler pantry, covered pavillion, master with sitting area and a seperate master closet.
Estimate your costs based on your location and materials.
All sales of house plans, modifications, and other products found on this site are final. No refunds or exchanges can be given once your order has begun the fulfillment process. Please see our Policies for additional information.
All plans offered on ThePlanCollection.com are designed to conform to the local building codes when and where the original plan was drawn.
The homes as shown in photographs and renderings may differ from the actual blueprints. For more detailed information, please review the floor plan images herein carefully.
Estimate your costs based on your location and materials.

