Estimate your costs based on your location and materials.
Yes! This plan can be customized—contact us for a free quote.

Yes! This plan can be customized—contact us for a free quote.
Please Note: The Reproducible Master for this plan is sent to you on bond paper that reproduces well.
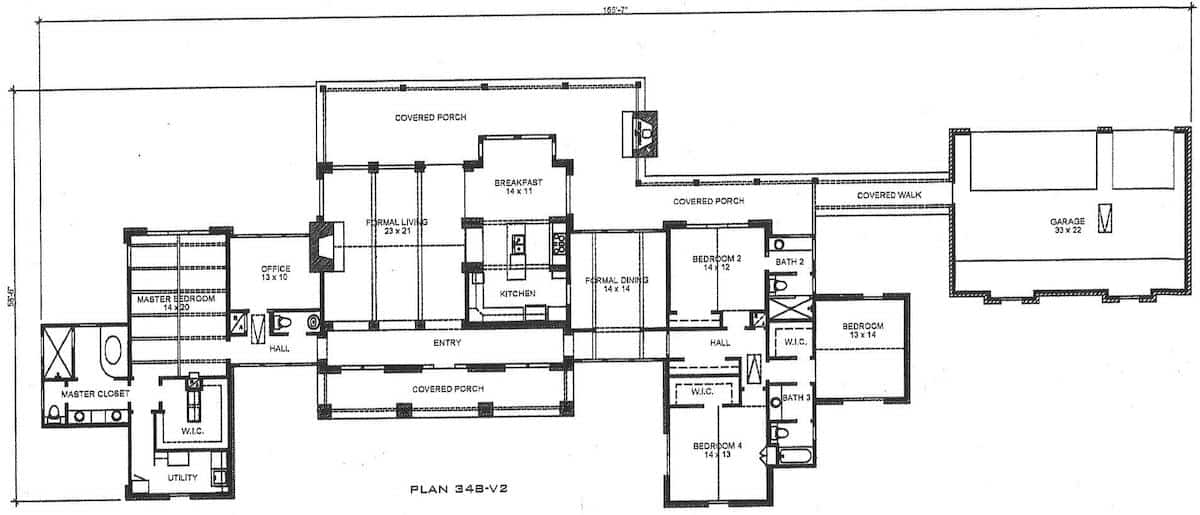
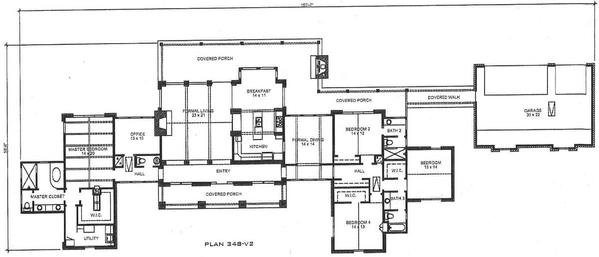
This impressive Texas Hill Country ranch home, with its stone exterior, metal roof, and raised central roof, boasts architectural creativity and craftsmanship rarely seen today. The wide front porch with its wood and stone columns leads inside to an entry hall. The home flows into the vaulted living area with a fireplace and views to the rear porch. Steps away are the breakfast area and kitchen with an island. Completing the living area are an impressive formal dining room and an office/study. Designed in a split layout, the sleeping quarters provide space and privacy for the primary suite...
Estimate your costs based on your location and materials.
All sales of house plans, modifications, and other products found on this site are final. No refunds or exchanges can be given once your order has begun the fulfillment process. Please see our Policies for additional information.
All plans offered on ThePlanCollection.com are designed to conform to the local building codes when and where the original plan was drawn.
The homes as shown in photographs and renderings may differ from the actual blueprints. For more detailed information, please review the floor plan images herein carefully.
Estimate your costs based on your location and materials.

