4-Bedroom, 3130 Sq Ft Country Plan with Covered Front Porch

Main image for house plan # 13520

Images/Plans copyrighted by designer. Photos may reflect homeowner modifications.

About House Plan #101-1270

Sq Ft
3130
Sq Ft
Bedrooms
4
Bedrooms
Bathroom
3
Baths
Half Baths
0
Half Baths
Bedrooms
3
Cars
Bedrooms
1
Stories
Bedrooms
63' 0'
Width
Bedrooms
63
Depth
Starting at$1240.00What's included
STEP 1Bedrooms
STEP 2Bedrooms
STEP 3Bedrooms

Subtotal:$0
BedroomsBest Price Guaranteed
Plan Collection

How much will it cost to build?

Estimate your costs based on your location and materials.

Free Cost Instant Estimator

Floor Plans

MAIN FLOOR PLAN
MAIN FLOOR PLAN
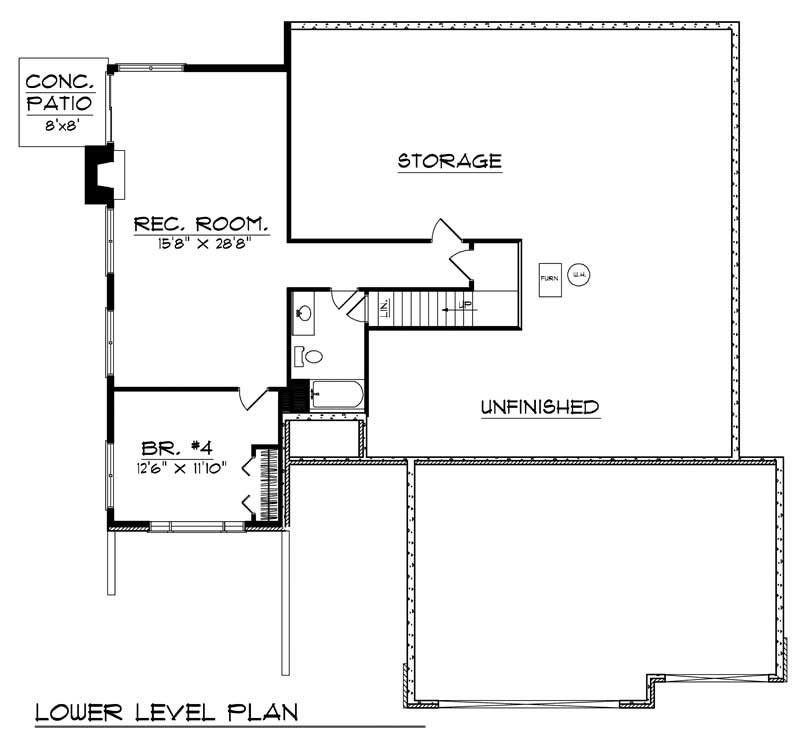
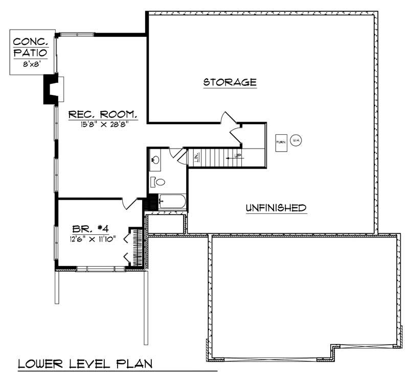
BASEMENT FLOOR PLAN
BASEMENT FLOOR PLAN
Plan Collection

Can I modify this plan?

Yes! This plan can be customized—contact us for a free quote.

House Plan Description

This graceful home features an open and welcoming floor plan and a useful lower level. For entertaining, look no farther than the formal living and dining rooms. Your loved ones will gravitate toward the family room, which features a fireplace and two walls of windows, one of which looks out on the rear deck. The spacious kitchen has wrap-around counters and an eating bar and is open to the vaulted, sunny breakfast nook. The master bedroom has two walk-in closets and a private bath. There are two additional bedrooms on this floor, one of which can be used as a den if you prefer. This...

Home Details

Summary
Plan #:101-1270
Starting at:$1240.00
Floors:1
Bedrooms:4
Full Baths:3
Half Baths:0
Garage:
Square Footage
Heated Area:3130 Sq. Ft.
First Floor:2282 Sq. Ft.
Unheated Area:
Basement:848 Sq. Ft.
Dimensions
Depth:63' 8''
Architectural Styles
Exterior Wall Material
Vinyl Siding
Roof Pitch
8/12
Ceiling Height
9 Foot Ceiling
Special Feature
FireplaceDining RoomFamily Room
Garage Type
Attached Garage
Exterior Wall Framing
2x6

What’s Included

Most plan sets include the following:

icon text-secondary-400 includedFront, Back & Side Elevations

icon text-secondary-400 includedFloor Plans

icon text-secondary-400 includedElectrical Layout (location of outlets, switches, etc. - it does not have wiring schematics)

icon text-secondary-400 includedRoof Plan (Birdseye view)

icon text-secondary-400 includedFoundation Layout

icon text-secondary-400 includedWall & Stair Sections

icon text-secondary-400 includedCross Section

icon text-secondary-400 includedKitchen Layout

icon text-secondary-400 includedGeneral Notes

What’s Not Included

These items are  NOT included:

icon text-secondary-400 includedArchitectural or Engineering Stamp - handled locally if required.

icon text-secondary-400 includedSite Plan - handled locally when required.

icon text-secondary-400 includedMechanical Drawings (location of heating and air equipment and ductwork) - your subcontractors handle this.

icon text-secondary-400 includedPlumbing Drawings (drawings showing the actual plumbing pipe sizes and locations) - your subcontractors handle this.

icon text-secondary-400 includedFraming layouts with beam sizes and locations.

icon text-secondary-400 includedEnergy calculations - handled locally when required.

Related House Plans

Plan Collection
Plan Collection
Plan Collection
Plan#142-1102
Starting at$1495
2639
Sq Ft
1
Story
4
Bed
3
Bath
2
Car
Plan Collection
Plan Collection
Plan Collection
Plan#146-2173
Starting at$1015
2464
Sq Ft
1
Story
4
Bed
3
Bath
3
Car
Plan Collection
Plan Collection
Plan Collection
Plan#142-1244
Starting at$1645
3086
Sq Ft
1
Story
4
Bed
3.5
Bath
3
Car
View All

Other Plans By This Designer

Plan Collection
Plan Collection
Plan Collection
Plan#101-1503
Starting at$1090
2098
Sq Ft
2
Story
4
Bed
2
Bath
2
Car
Plan Collection
Plan Collection
Plan Collection
Plan#101-1028
Starting at$1240
3020
Sq Ft
2
Story
4
Bed
2.5
Bath
3
Car
Plan Collection
Plan Collection
Plan Collection
Plan#101-2024
Starting at$1240
3235
Sq Ft
1
Story
5
Bed
3.5
Bath
3
Car