Estimate your costs based on your location and materials.
Yes! This plan can be customized—contact us for a free quote.


Yes! This plan can be customized—contact us for a free quote.
Please Note! This designer does NOT ship paper copies to Canada. Please order your plans in electronic format (PDF or CAD)! USDA Approval is available for this plan. If interested, submit a modification request for a free quote. What is USDA Approval? Certification that a particular house plan meets the housing requirements of the US Department of Agriculture's Rural Housing Service. This is one of the requirements if you intend to apply for a loan through the Rural Housing Service.
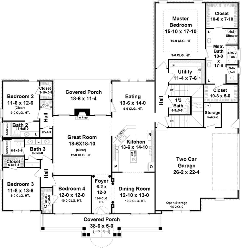
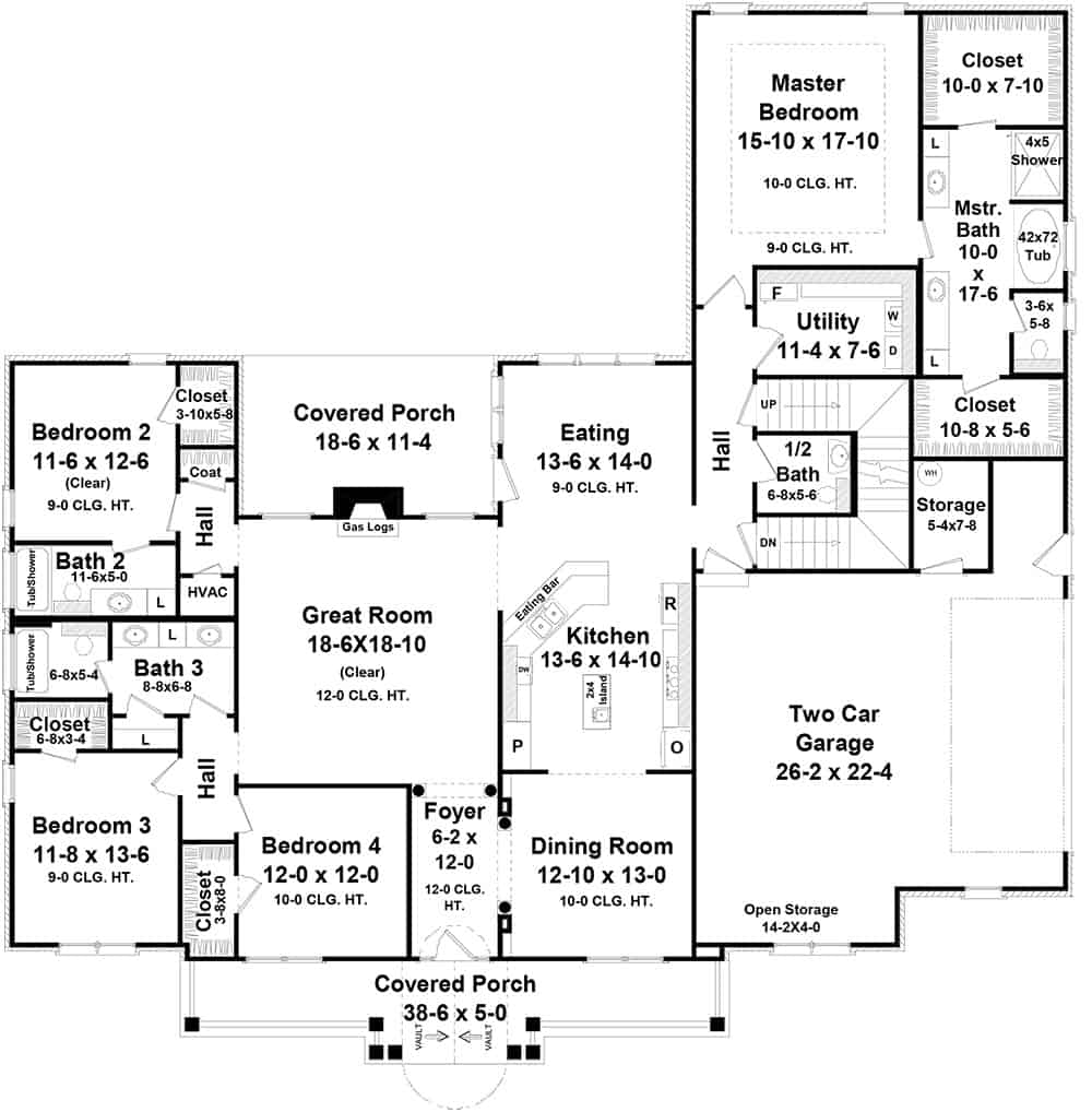
This traditional country home includes an open floor plan with 4 spacious bedrooms, 3 1/2 baths, a split-bedroom layout, and other unique features. The master suite includes a raised ceiling in the master bedroom, 2 large his and her walk-in closets, a jet tub, and an oversized shower. The kitchen is fully-equipped with a wraparound raised bar, pantry, and a large adjoining breakfast area. Just off of the kitchen is a beautiful formal dining room complete with built-in shelves and 10' ceilings. One bedroom can even be used as a family member suite. Expansive great...
Estimate your costs based on your location and materials.
All sales of house plans, modifications, and other products found on this site are final. No refunds or exchanges can be given once your order has begun the fulfillment process. Please see our Policies for additional information.
All plans offered on ThePlanCollection.com are designed to conform to the local building codes when and where the original plan was drawn.
The homes as shown in photographs and renderings may differ from the actual blueprints. For more detailed information, please review the floor plan images herein carefully.
Estimate your costs based on your location and materials.






