Estimate your costs based on your location and materials.
Yes! This plan can be customized—contact us for a free quote.


Yes! This plan can be customized—contact us for a free quote.
PLEASE NOTE: Materials Lists are based on the STOCK plan ONLY without modifications! Custom materials lists are available if you modify a plan. Please ask for a quote.
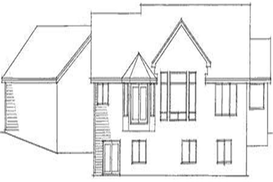
Craftsman and European styles come together in this rambler's elegant facade. Enter double doors to the grand foyer and be welcomed in by the fireplace-warmed Great Room; next door, the deluxe kitchen features a large, rangetop island with snack bar. The main-floor master suite, accented by a high vaulted ceiling, takes up nearly the entire left side of the home, and features a sprawling corner garden tub, a separate shower and a large walk-in closet. Two more bedrooms are located in the walk-out basement and enjoy their own living room area; the main-floor study can also serve as another...
Estimate your costs based on your location and materials.
All sales of house plans, modifications, and other products found on this site are final. No refunds or exchanges can be given once your order has begun the fulfillment process. Please see our Policies for additional information.
All plans offered on ThePlanCollection.com are designed to conform to the local building codes when and where the original plan was drawn.
The homes as shown in photographs and renderings may differ from the actual blueprints. For more detailed information, please review the floor plan images herein carefully.
Estimate your costs based on your location and materials.



