Estimate your costs based on your location and materials.
Yes! This plan can be customized—contact us for a free quote.


Yes! This plan can be customized—contact us for a free quote.
Happy Holidays! The designer's office is closed for the holidays until January 1st. All orders, inquiries, and quotes will be completed when the designer resumes office hours on January 1st.
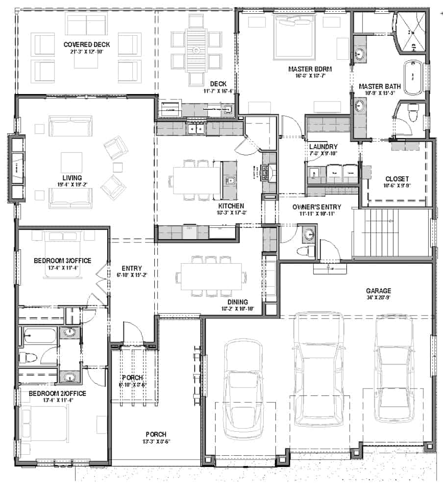
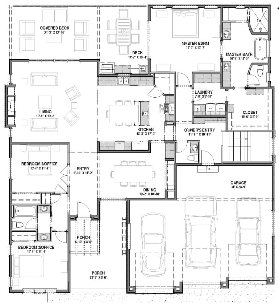
This beautiful Contemporary style home with French details (Plan #194-1003) has 5228 total square feet of space, finished and unfinished, not including garage, porch, and decks. The 1 story floor plan includes a sumptuous master suite with huge master bath and walk-in closet, 2 additional bedrooms, 1 additional full bath, and 1 half bath, all on the main level. Also on the main level are an open-plan Great Room/kitchen, formal dining room, large laundry room, covered deck, outdoor kitchen, and 3-car garage with extra storage space.
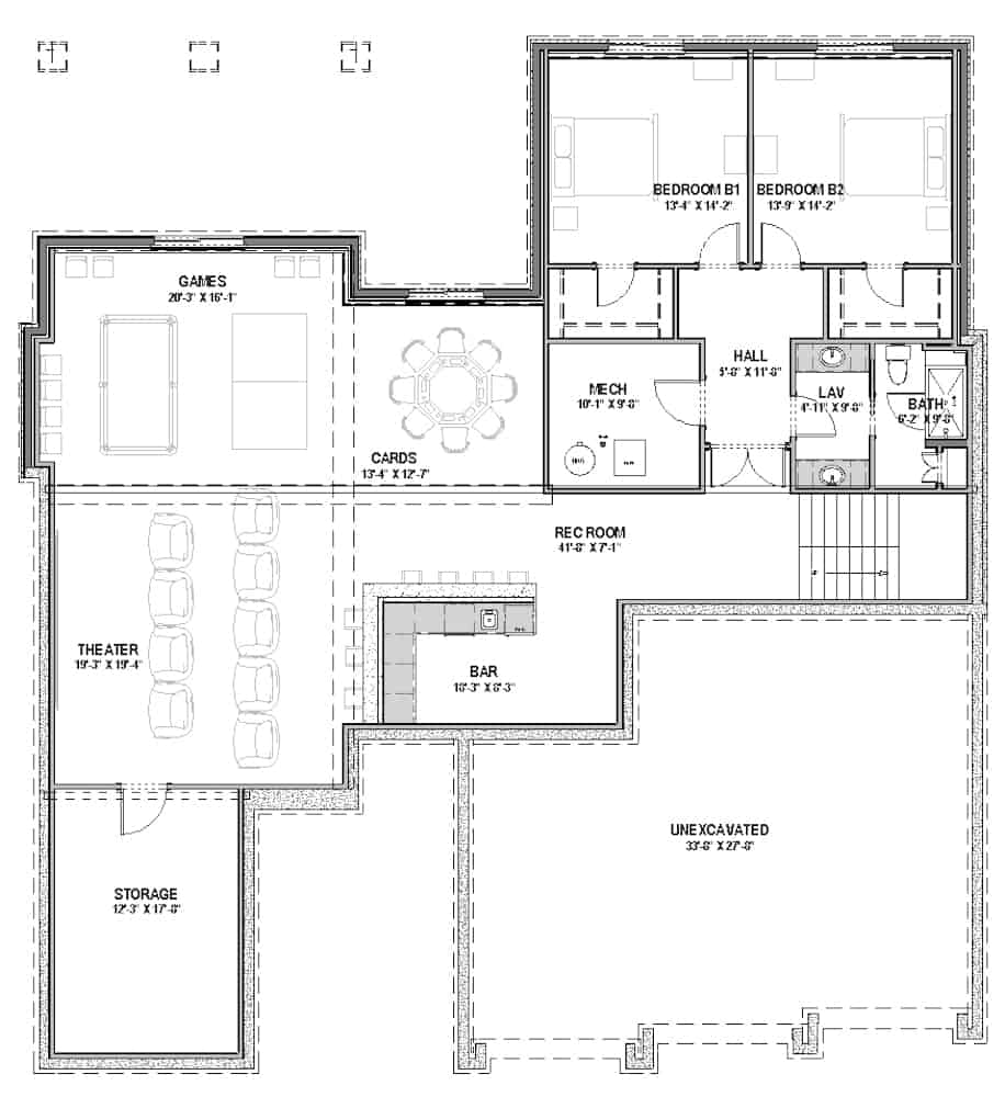
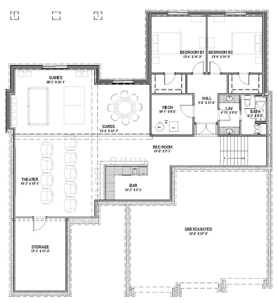
The basement level has 2614 square...
Estimate your costs based on your location and materials.
All sales of house plans, modifications, and other products found on this site are final. No refunds or exchanges can be given once your order has begun the fulfillment process. Please see our Policies for additional information.
All plans offered on ThePlanCollection.com are designed to conform to the local building codes when and where the original plan was drawn.
The homes as shown in photographs and renderings may differ from the actual blueprints. For more detailed information, please review the floor plan images herein carefully.
Estimate your costs based on your location and materials.














