Estimate your costs based on your location and materials.
Yes! This plan can be customized—contact us for a free quote.


Yes! This plan can be customized—contact us for a free quote.
Please Note: The Designer's office will be closed for the holidays from 12/19/2025 to 1/5/2026. Any orders placed during this time will be fulfilled when the designer resumes office. This designer's plans take 7-14 additional business days regardless of the type of delivery (express, email, etc). Please keep this in mind when ordering.
BCIN is available for this designer - please submit a modification request to get a quote and time frame.
PLEASE NOTE! This designer's plans do NOT come with an electrical layout. They will provide an electrical layout for an additional fee.
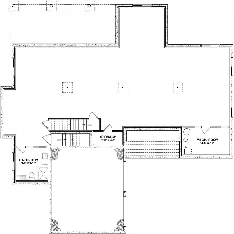
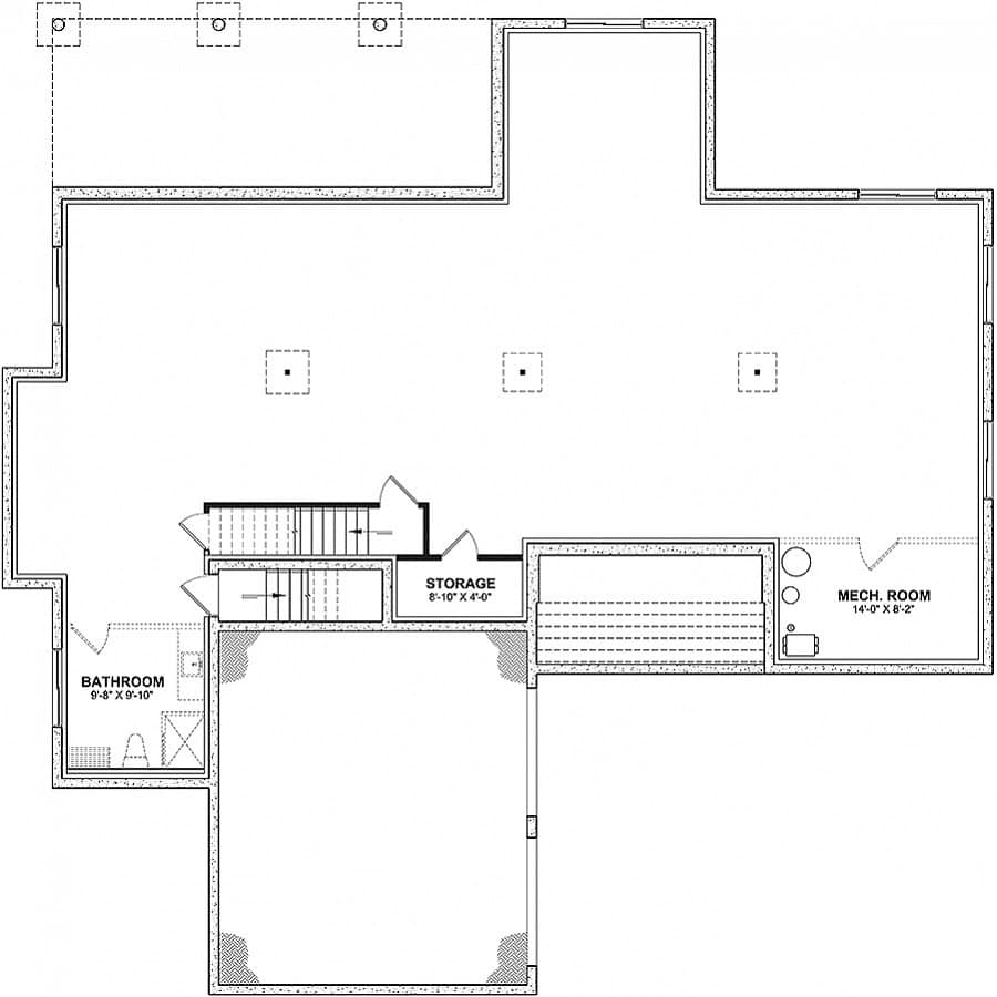
This Single Family Ranch Contemporary Style House Plan has 2324 square feet, 3 bedrooms, and 2 bathrooms.
This Ranch Contemporary style house is sure to be one of your favorites on your checklist. The different levels of the roof and the forwarded gables added by a well-balanced combination of materials give it a natural homey appeal and vibrancy. The house gives you a total heated area of 2,324 square feet with a 2324-square-foot unfinished basement, ready for future development. It has a 657-square-foot 2-car garage with flexible car bay and can be converted into another functional room or workshop.
Upon stepping in front of the house an awesome covered...
Estimate your costs based on your location and materials.
All sales of house plans, modifications, and other products found on this site are final. No refunds or exchanges can be given once your order has begun the fulfillment process. Please see our Policies for additional information.
All plans offered on ThePlanCollection.com are designed to conform to the local building codes when and where the original plan was drawn.
The homes as shown in photographs and renderings may differ from the actual blueprints. For more detailed information, please review the floor plan images herein carefully.
Estimate your costs based on your location and materials.




















