Estimate your costs based on your location and materials.
Yes! This plan can be customized—contact us for a free quote.

Yes! This plan can be customized—contact us for a free quote.
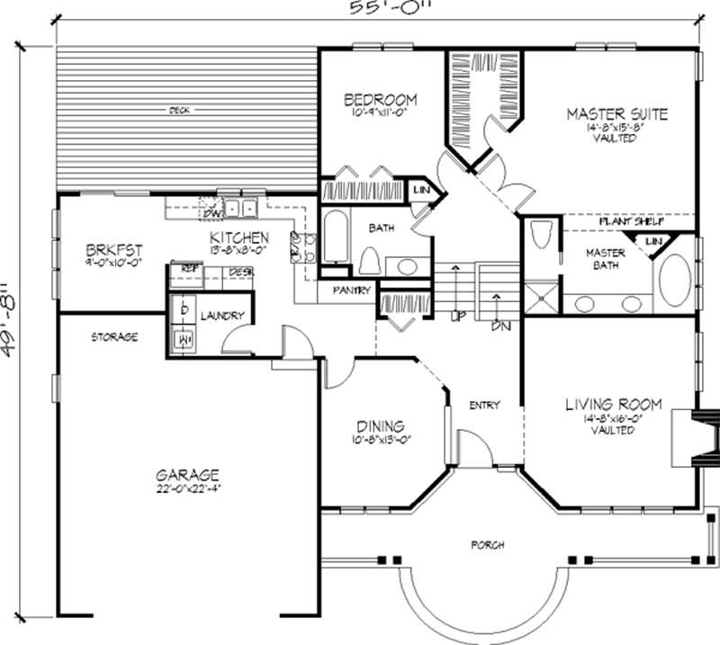
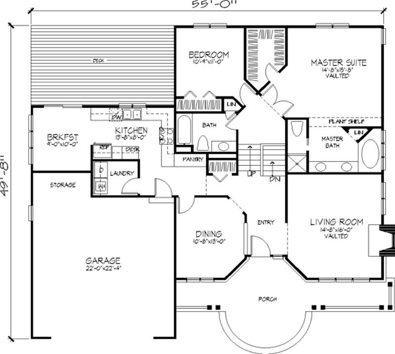
This front-to-back split-level design offers the flexibility to finish 1,581 sq. ft. on the upper two levels now and another 712 sq. ft. when funds allow. The kitchen offers handy access to the formal dining room, a breakfast eating area and the garage through the laundry/mud room. The living room boasts a cozy fireplace. The master suite flaunts a vaulted ceiling, a walk-in closet and a large private bath. The spacious family room makes the perfect spot for a variety of family activities.
Estimate your costs based on your location and materials.
All sales of house plans, modifications, and other products found on this site are final. No refunds or exchanges can be given once your order has begun the fulfillment process. Please see our Policies for additional information.
All plans offered on ThePlanCollection.com are designed to conform to the local building codes when and where the original plan was drawn.
The homes as shown in photographs and renderings may differ from the actual blueprints. For more detailed information, please review the floor plan images herein carefully.
Estimate your costs based on your location and materials.

