Estimate your costs based on your location and materials.
Yes! This plan can be customized—contact us for a free quote.

Yes! This plan can be customized—contact us for a free quote.
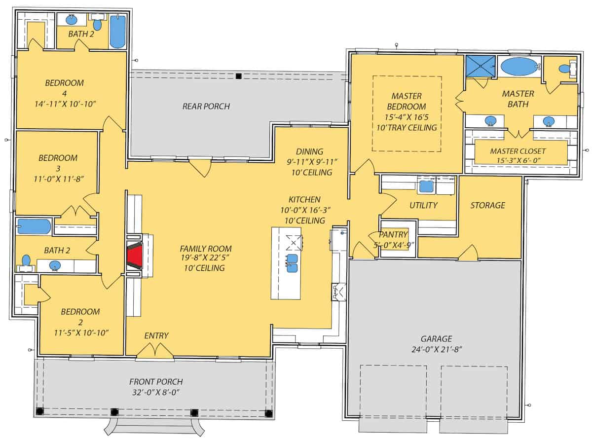
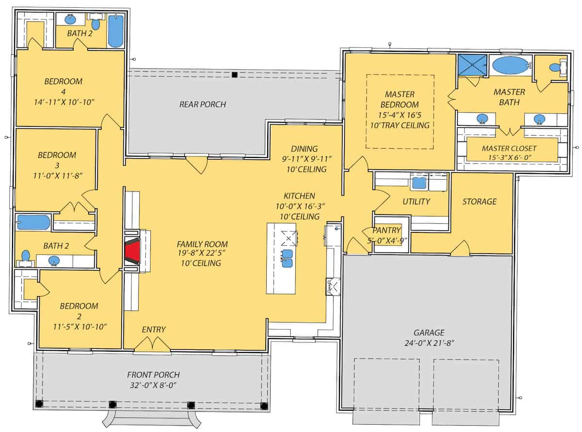
If you're looking for an ideal home for your family, this Acadian style house with French design details, may be the perfect one, filled with artsy charm. The brick siding, multiple roof lines, pleasant covered entry porch, and lovely windows with shutters further enhance the dynamic design of the house and may help make it to the top of your "favored" list. This spectacular 1-story home's floor plan has 2292 square feet of heated and cooled living space and includes
• Open floor plan with fireplace in the...
Estimate your costs based on your location and materials.
All sales of house plans, modifications, and other products found on this site are final. No refunds or exchanges can be given once your order has begun the fulfillment process. Please see our Policies for additional information.
All plans offered on ThePlanCollection.com are designed to conform to the local building codes when and where the original plan was drawn.
The homes as shown in photographs and renderings may differ from the actual blueprints. For more detailed information, please review the floor plan images herein carefully.
Estimate your costs based on your location and materials.





