Estimate your costs based on your location and materials.
Yes! This plan can be customized—contact us for a free quote.

Yes! This plan can be customized—contact us for a free quote.
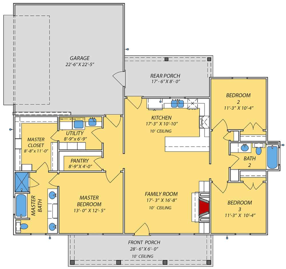
You'll find simple but excellent architectural design on this Acadian style home with French design features. It would be the perfect home for retirement downsizing, vacation getaway, or a starter home! The superb 1-story home's floor plan has 1422 square feet of fully conditioned living space and includes desirable features and amenities:
• Family room in an open floor plan with a fireplace
• High ceilings
• Wide walk-in kitchen pantry
• Large laundry room
• Covered rear porch
Estimate your costs based on your location and materials.
All sales of house plans, modifications, and other products found on this site are final. No refunds or exchanges can be given once your order has begun the fulfillment process. Please see our Policies for additional information.
All plans offered on ThePlanCollection.com are designed to conform to the local building codes when and where the original plan was drawn.
The homes as shown in photographs and renderings may differ from the actual blueprints. For more detailed information, please review the floor plan images herein carefully.
Estimate your costs based on your location and materials.







