Estimate your costs based on your location and materials.
Yes! This plan can be customized—contact us for a free quote.

Yes! This plan can be customized—contact us for a free quote.
NO Material lists.
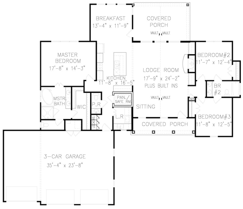
This elegantly designed Ranch style home with attached 856-square-foot 3-car garage has "conditioned" living area of 1946 square feet.
Its grand entrance is embraced by an awesome trellised covered porch both at the front and back where its residents can enjoy a morning coffee or relax and meditate after a day’s work. Guests will be overwhelmed and awed by the welcoming large open planning of the sitting area, lodge room, kitchen, and breakfast area. The open floor plan allows the kitchen and dining area to be just steps away. The layout also...
Estimate your costs based on your location and materials.
All sales of house plans, modifications, and other products found on this site are final. No refunds or exchanges can be given once your order has begun the fulfillment process. Please see our Policies for additional information.
All plans offered on ThePlanCollection.com are designed to conform to the local building codes when and where the original plan was drawn.
The homes as shown in photographs and renderings may differ from the actual blueprints. For more detailed information, please review the floor plan images herein carefully.
Estimate your costs based on your location and materials.



