Estimate your costs based on your location and materials.
Yes! This plan can be customized—contact us for a free quote.

Yes! This plan can be customized—contact us for a free quote.
PLEASE NOTE!! For this designer, The PDF that comes with the PRINT Packages (5 set+PDF and 8 set+PDF) is NOT Modifiable - it is for printing ONLY! PLEASE NOTE!! Optional Foundations (foundations that cost extra money) will take 5-10 business days to complete.
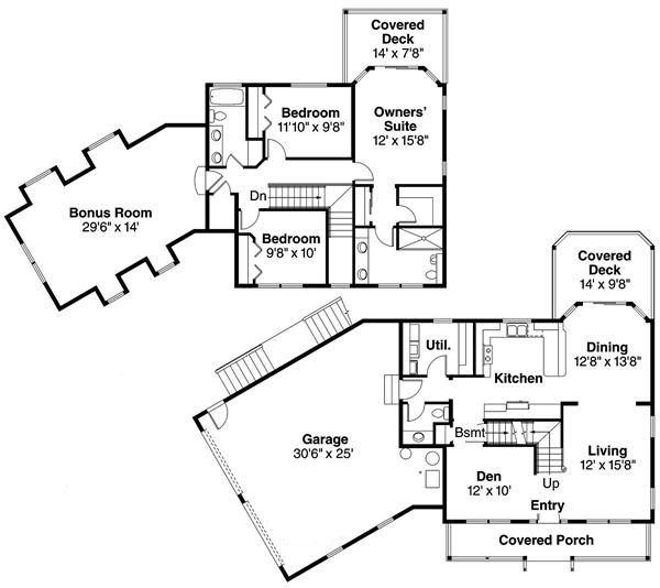
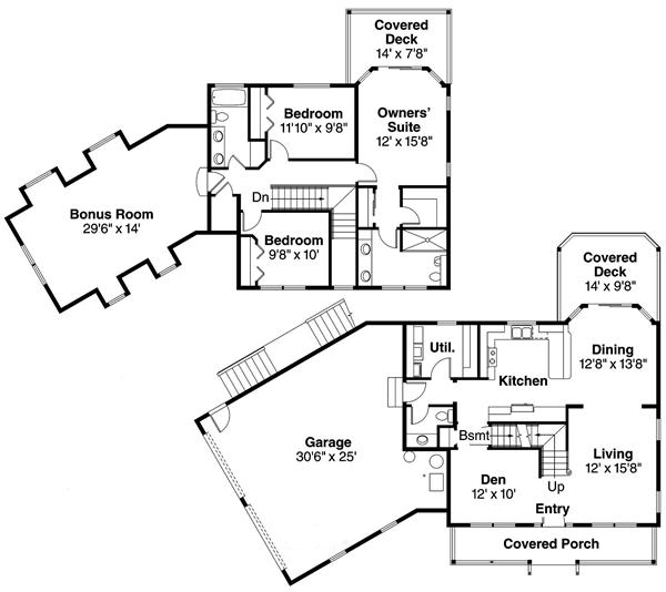
Country home plans. Bright, expansive gathering spaces fill most of this country cottage home plan's main floor. The living room, dining area and kitchen flow together. The den is also linked, but could be more fully enclosed, if a home office is needed. Cabinets and built-in appliances wrap around four sides of the spacious kitchen, mere steps away from a utility room and half bath. Two stories, shutter-flanked windows, and a railed front porch give the #108-1507 the comfortably familiar look of a nostalgic country cottage. This home is designed for construction on a lot that slopes...
Estimate your costs based on your location and materials.
All sales of house plans, modifications, and other products found on this site are final. No refunds or exchanges can be given once your order has begun the fulfillment process. Please see our Policies for additional information.
All plans offered on ThePlanCollection.com are designed to conform to the local building codes when and where the original plan was drawn.
The homes as shown in photographs and renderings may differ from the actual blueprints. For more detailed information, please review the floor plan images herein carefully.
Estimate your costs based on your location and materials.


