Estimate your costs based on your location and materials.
Yes! This plan can be customized—contact us for a free quote.


Yes! This plan can be customized—contact us for a free quote.
On some plans, Basement Foundations, Walkout Basement Foundations, & 2x6 Conversions could take up to ONE WEEK to produce. Materials Lists could take up to FOUR WEEKS to produce and they will be for the ORIGINAL plan! Any modifications will NOT be reflected on the Materials List. NOTE FROM DESIGNER: If you purchase a CAD, you will automatically receive the unlimited build license - no need to purchase separately!
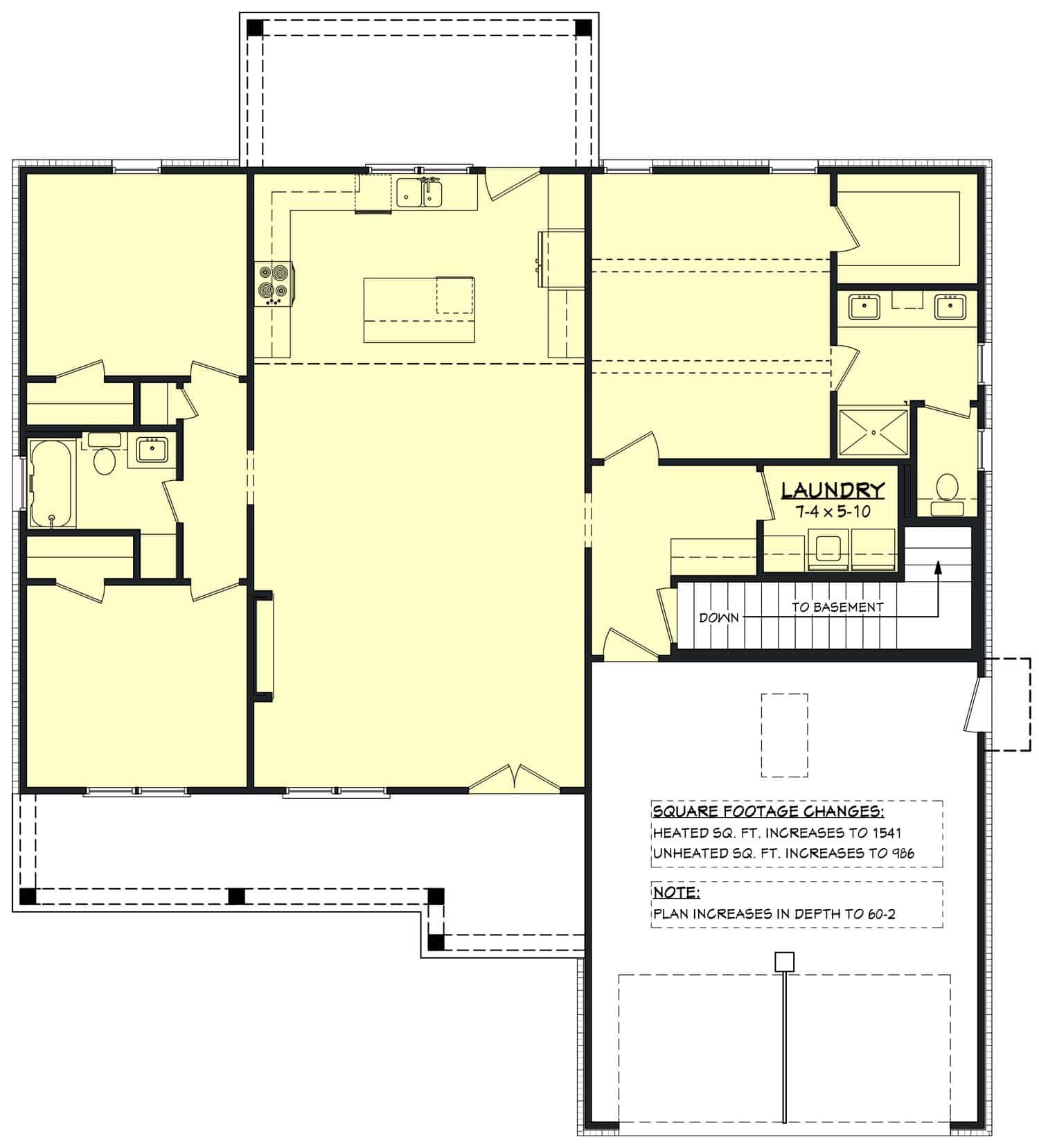
This thoughtfully designed 3-bedroom, 2-bathroom farmhouse plan offers 1,523 sq ft of heated living space in a highly functional single-story layout. The home features a classic exterior with board and batten siding and a brick skirt, complemented by a welcoming covered front porch (30’-8” x 6”) and a spacious rear porch (18’-8” x 8”), totaling 354 sq ft of outdoor living space.
Inside, the open floor plan connects the great room, dining area, and kitchen, creating a bright and inviting atmosphere. The kitchen includes a center island with...
Estimate your costs based on your location and materials.
All sales of house plans, modifications, and other products found on this site are final. No refunds or exchanges can be given once your order has begun the fulfillment process. Please see our Policies for additional information.
All plans offered on ThePlanCollection.com are designed to conform to the local building codes when and where the original plan was drawn.
The homes as shown in photographs and renderings may differ from the actual blueprints. For more detailed information, please review the floor plan images herein carefully.
Estimate your costs based on your location and materials.









