3-Bedroom, 1484 Sq Ft Country Plan with Master Bathroom

This is another computer rendering of another set of Ranch House Plans.

Images/Plans copyrighted by designer. Photos may reflect homeowner modifications.

About House Plan #148-1100

Sq Ft
1484
Sq Ft
Bedrooms
3
Bedrooms
Bathroom
2
Baths
Half Baths
0
Half Baths
Bedrooms
2
Cars
Bedrooms
1
Stories
Bedrooms
59' 0'
Width
Bedrooms
54
Depth
Starting at$750.00What's included
STEP 1Bedrooms
STEP 2Bedrooms
STEP 3Bedrooms

Subtotal:$0
BedroomsBest Price Guaranteed
Plan Collection

How much will it cost to build?

Estimate your costs based on your location and materials.

Free Cost Instant Estimator

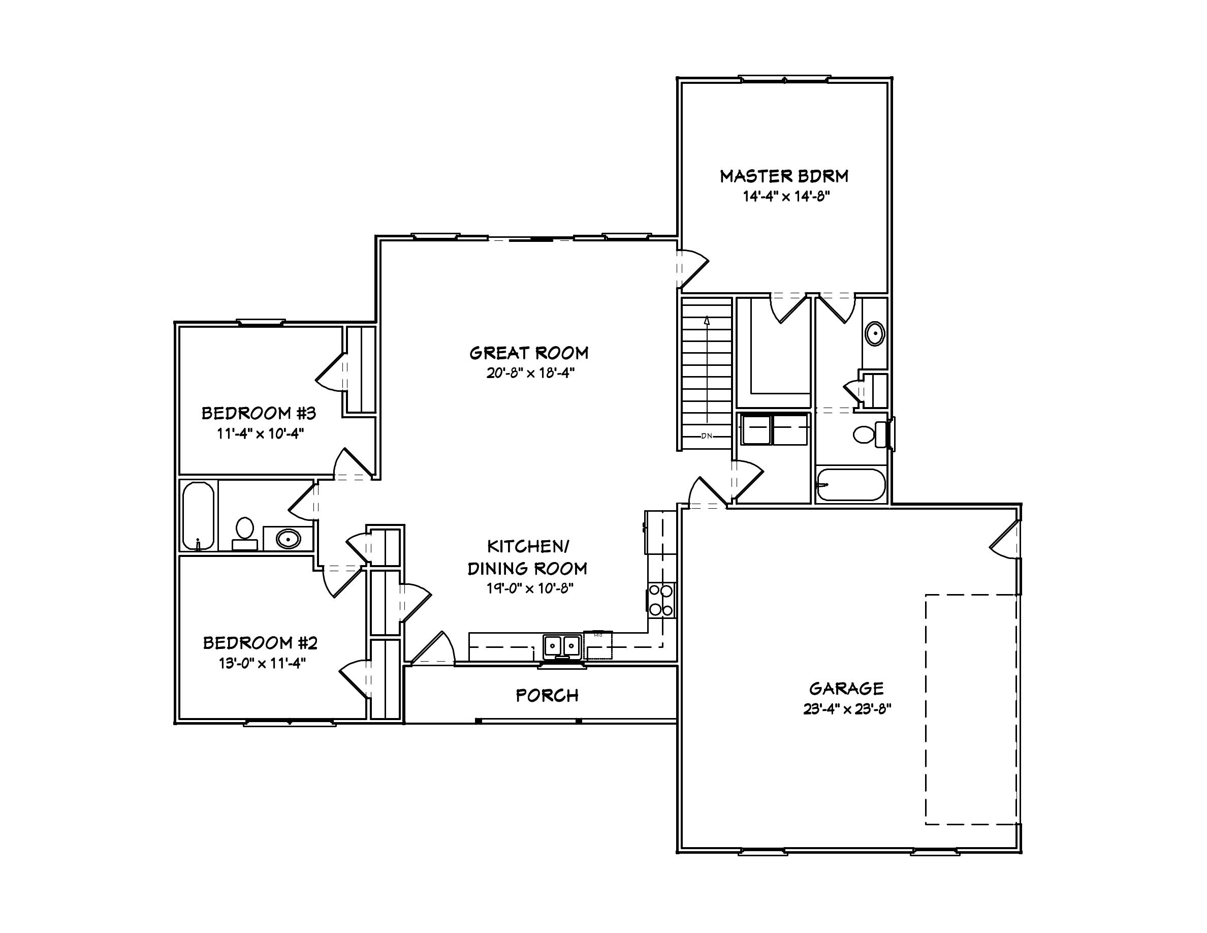
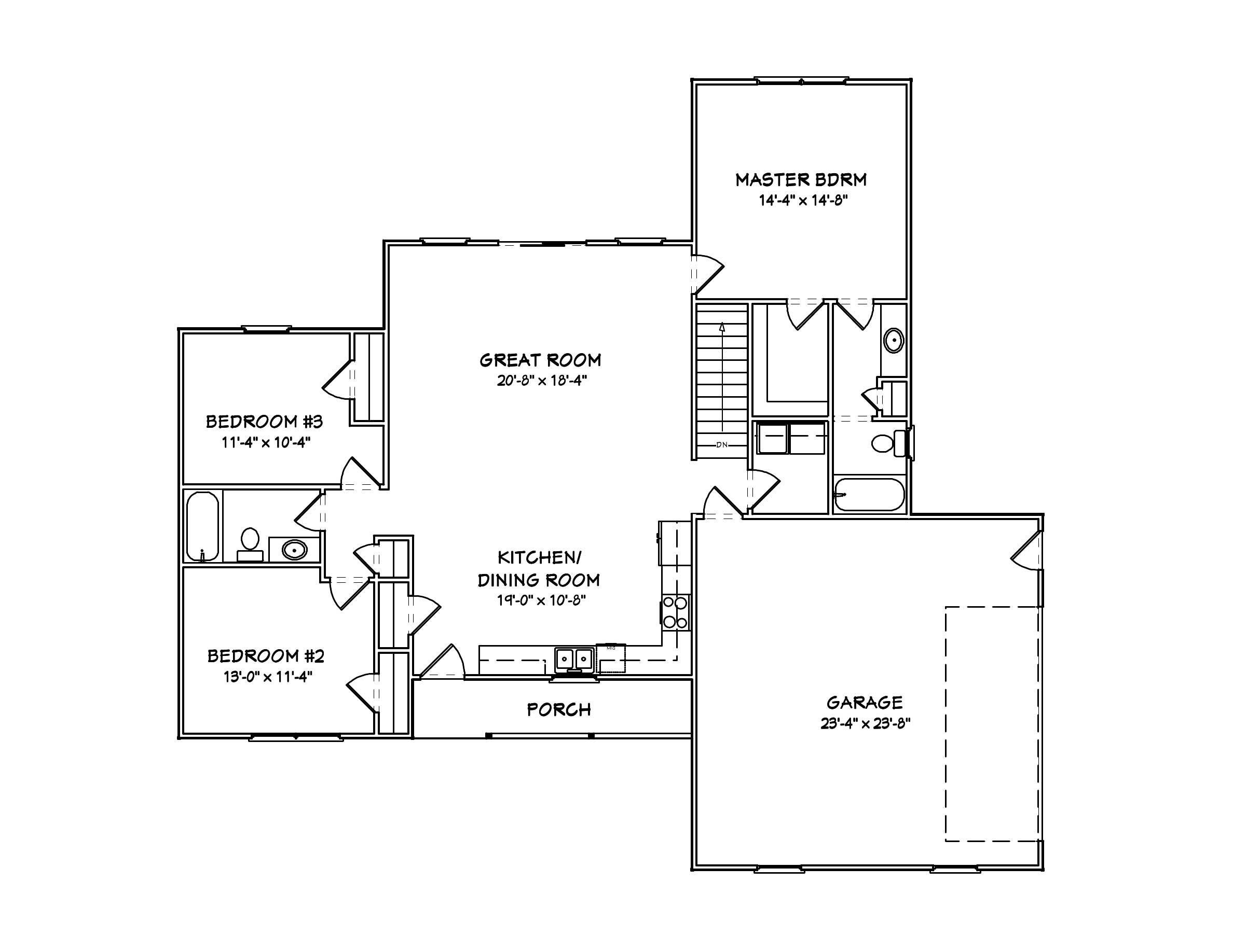
Floor Plans

Floor Plan First Story
Floor Plan First Story
Plan Collection

Can I modify this plan?

Yes! This plan can be customized—contact us for a free quote.

House Plan Description

.

Home Details

Summary
Plan #:148-1100
Starting at:$750.00
Floors:1
Bedrooms:3
Full Baths:2
Half Baths:0
Garage:
Square Footage
Heated Area:1484 Sq. Ft.
First Floor:1484 Sq. Ft.
Unheated Area:
Dimensions
Ridge Height:16' 0''
Architectural Styles
Exterior Wall Material
Wood Siding
Roofing Type
Gable
Roofing Material
Asphalt Shingles
Roof Pitch
5/126/12
Special Feature
Split Bathroom
Garage Type
Attached GarageSide Entry
Exterior Wall Framing
2x4
Building Lot Type
Flat Site
Kitchen Features
Eat-In Kitchen
Porches and Exterior Features
Covered Front Porch
Master Suite Features
Main Floor MasterMaster BathroomWalk In Closet

What’s Included

Most plan sets include the following:

icon text-secondary-400 includedFully dimensioned, noted Floor Plans

icon text-secondary-400 includedFully dimensioned, noted Foundation Plan

icon text-secondary-400 includedBuilding Cross Section

icon text-secondary-400 includedTypical Wall Section

icon text-secondary-400 included4 Exterior Elevations

icon text-secondary-400 includedRoof Plan

icon text-secondary-400 includedTwo 3D overhead views

icon text-secondary-400 includedElectrical Plan with Legend

icon text-secondary-400 includedStair Detail Page with Legends

icon text-secondary-400 includedConstruction Details, if applicable

icon text-secondary-400 includedGeneral notes throughout plan set

icon text-secondary-400 includedCover sheet with notes and front elevation

What’s Not Included

These items are  NOT included:

icon text-secondary-400 includedArchitectural or Engineering Stamp - handled locally if required.

icon text-secondary-400 includedSite Plan - handled locally when required.

icon text-secondary-400 includedMechanical Drawings (location of heating and air equipment and ductwork) - your subcontractors handle this.

icon text-secondary-400 includedPlumbing Drawings (drawings showing the actual plumbing pipe sizes and locations) - your subcontractors handle this.

icon text-secondary-400 includedEnergy calculations - handled locally when required.

Related House Plans

Plan Collection
Plan Collection
Plan Collection
Plan#142-1041
Starting at$1345
1300
Sq Ft
1
Story
3
Bed
2
Bath
2
Car
Plan Collection
Plan Collection
Plan Collection
Plan#141-1243
Starting at$1300
1640
Sq Ft
1
Story
3
Bed
2
Bath
2
Car
Plan Collection
Plan Collection
Plan Collection
Plan#176-1012
Starting at$600
1412
Sq Ft
1
Story
3
Bed
2
Bath
0
Car
View All

Other Plans By This Designer

Plan Collection
Plan Collection
Plan Collection
Plan#148-1080
Starting at$750
1560
Sq Ft
1
Story
3
Bed
2
Bath
2
Car
Plan Collection
Plan Collection
Plan Collection
Plan#148-1039
Starting at$750
884
Sq Ft
1
Story
2
Bed
1
Bath
2
Car
Plan Collection
Plan Collection
Plan Collection
Plan#148-1064
Starting at$750
1400
Sq Ft
1
Story
3
Bed
2
Bath
2
Car