Estimate your costs based on your location and materials.
Yes! This plan can be customized—contact us for a free quote.

Yes! This plan can be customized—contact us for a free quote.
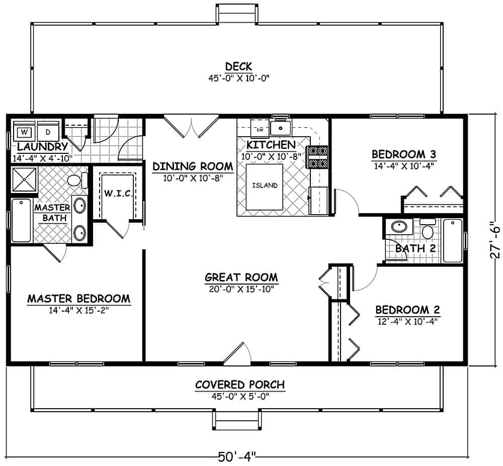
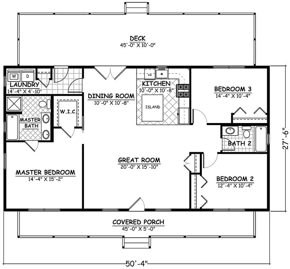
This simple Ranch style home with Cape Cod design features boasts a fantastic and generous layout perfect for a young family or empty-nester couple. You'll be especially delighted by the lovely front covered porch spanning the length of the house and the full-width sun deck out back. The 1-story floor plan has 1381 square feet of living space and includes 3 bedrooms and 2 full bathrooms.
Estimate your costs based on your location and materials.
All sales of house plans, modifications, and other products found on this site are final. No refunds or exchanges can be given once your order has begun the fulfillment process. Please see our Policies for additional information.
All plans offered on ThePlanCollection.com are designed to conform to the local building codes when and where the original plan was drawn.
The homes as shown in photographs and renderings may differ from the actual blueprints. For more detailed information, please review the floor plan images herein carefully.
Estimate your costs based on your location and materials.

