Estimate your costs based on your location and materials.
Yes! This plan can be customized—contact us for a free quote.


Yes! This plan can be customized—contact us for a free quote.
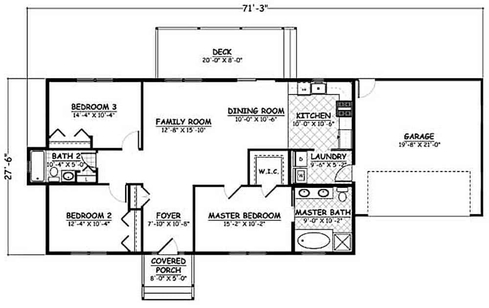
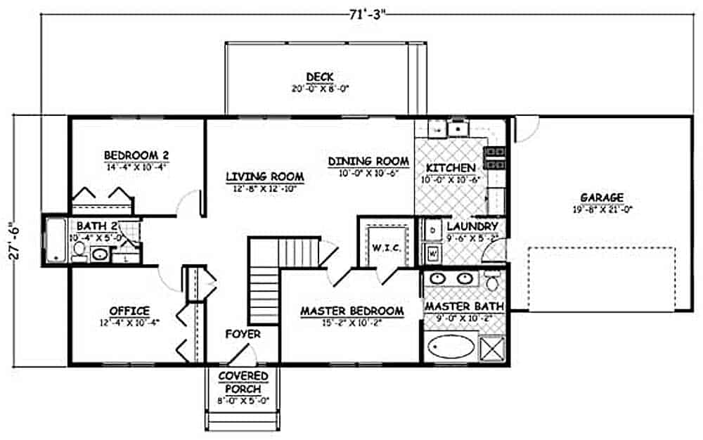
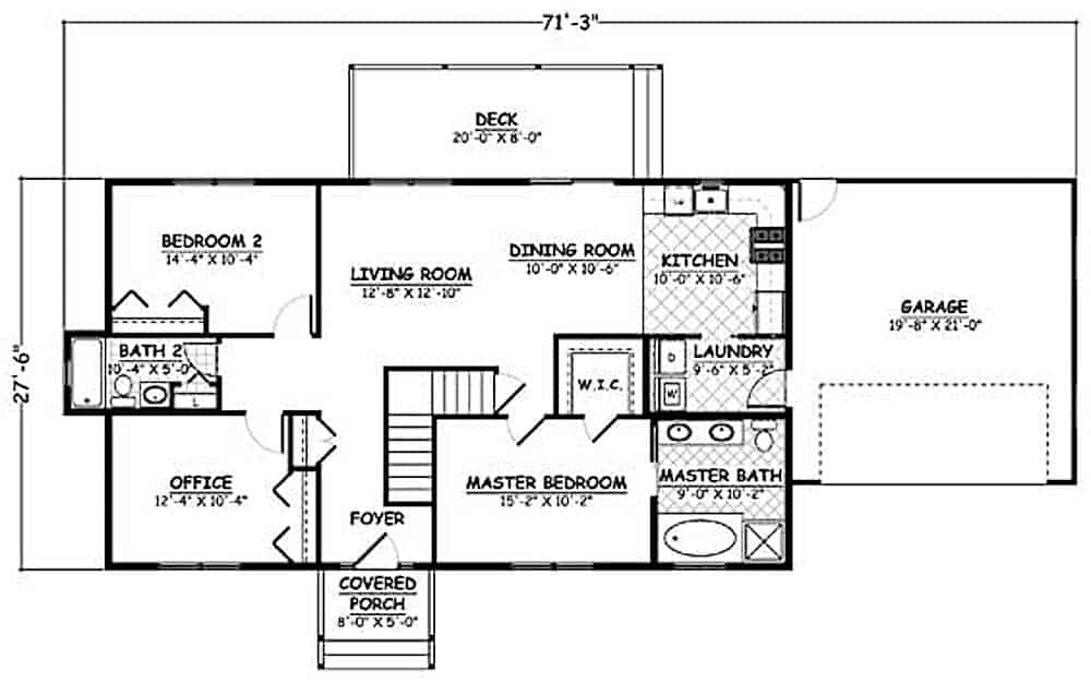
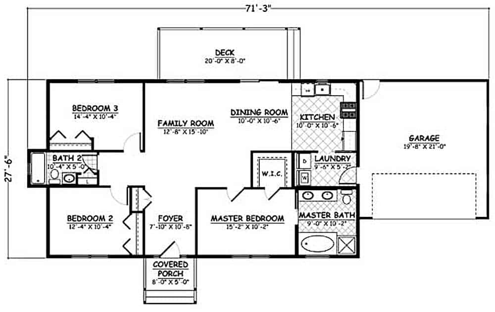
If you're looking for an easy-living and spacious design for your small family, this Country Ranch style home may be perfect! The house is so simple but elegant with plenty of windows to bring in beautiful natural lighting. The delightful 1-story floor has 1345 square feet of living space and includes 3 bedrooms (or 2 bedrooms and an office/oaccasional guest room) and 2 full bathrooms.
Estimate your costs based on your location and materials.
All sales of house plans, modifications, and other products found on this site are final. No refunds or exchanges can be given once your order has begun the fulfillment process. Please see our Policies for additional information.
All plans offered on ThePlanCollection.com are designed to conform to the local building codes when and where the original plan was drawn.
The homes as shown in photographs and renderings may differ from the actual blueprints. For more detailed information, please review the floor plan images herein carefully.
Estimate your costs based on your location and materials.






