Estimate your costs based on your location and materials.
Yes! This plan can be customized—contact us for a free quote.

Yes! This plan can be customized—contact us for a free quote.
NO Material lists.
NOTE: Porch sq ft figures may include any deck sq ft as well.
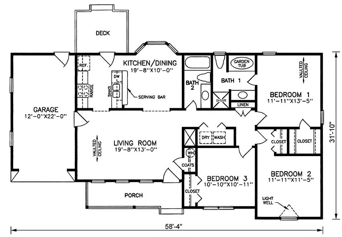
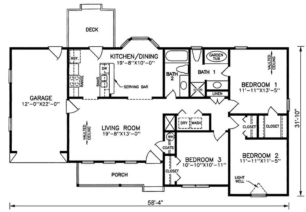
Experience timeless living with this 1-story Traditional house plan showcasing 1,281 square feet, 3 bedrooms, 2 baths, and a 1-car garage space. Thoughtfully designed to blend classic architecture with modern functionality, this home offers an inviting layout ideal for both relaxation and effortless entertaining. Highlighted by its graceful proportions and refined flow, this plan includes:
Estimate your costs based on your location and materials.
All sales of house plans, modifications, and other products found on this site are final. No refunds or exchanges can be given once your order has begun the fulfillment process. Please see our Policies for additional information.
All plans offered on ThePlanCollection.com are designed to conform to the local building codes when and where the original plan was drawn.
The homes as shown in photographs and renderings may differ from the actual blueprints. For more detailed information, please review the floor plan images herein carefully.
Estimate your costs based on your location and materials.





