Estimate your costs based on your location and materials.
Yes! This plan can be customized—contact us for a free quote.

Yes! This plan can be customized—contact us for a free quote.
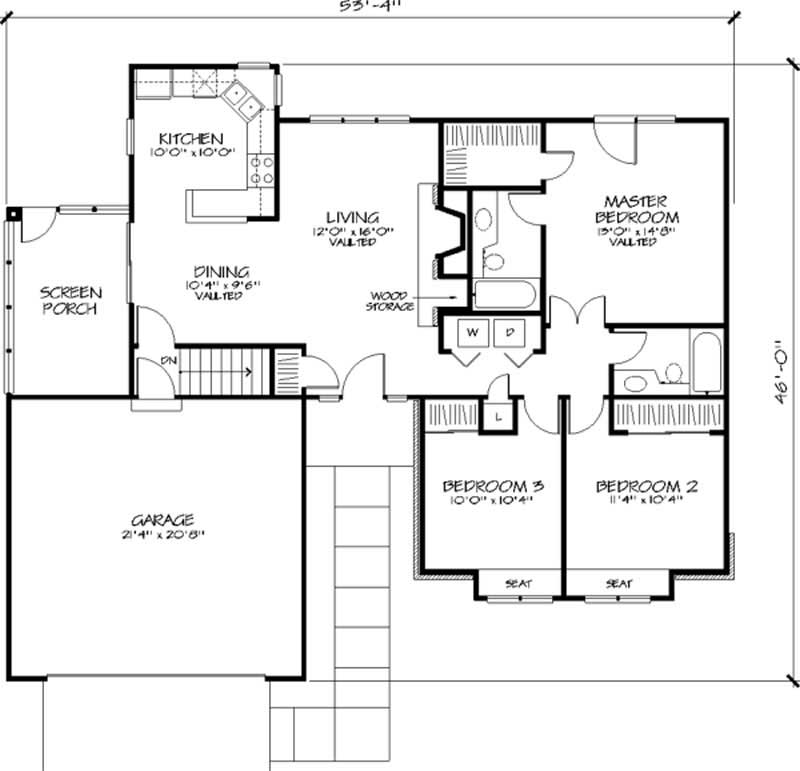
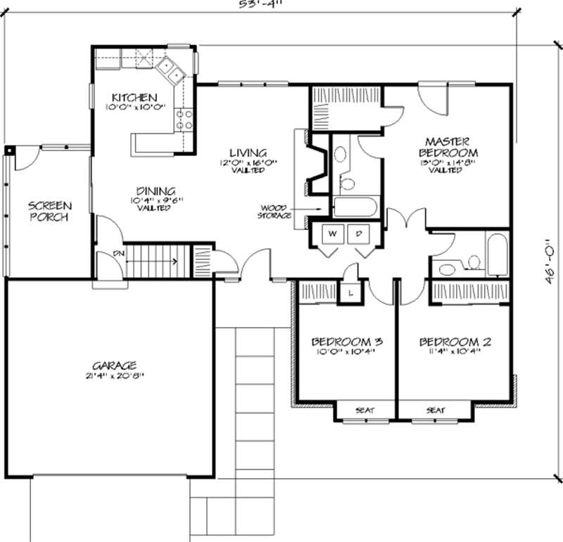
This ranch boastran affordable three-bedroom, single-story home that is perfect for the young family or for retirees. Vaulted ceilings in the living room and dining room create drama and volume. The big fireplace and rear windows bring in light and warmth. The efficient design of the kitchen includes a corner sink framed by windows and a breakfast bar open to the dining room. The adjoining screen porch could serve as expansion space. A main-floor laundry closet is conveniently located in the bedroom wing. The large master bedroom features a vaulted ceiling, a walk-in closet and a private...
Estimate your costs based on your location and materials.
All sales of house plans, modifications, and other products found on this site are final. No refunds or exchanges can be given once your order has begun the fulfillment process. Please see our Policies for additional information.
All plans offered on ThePlanCollection.com are designed to conform to the local building codes when and where the original plan was drawn.
The homes as shown in photographs and renderings may differ from the actual blueprints. For more detailed information, please review the floor plan images herein carefully.
Estimate your costs based on your location and materials.

