4-Bedroom, 2212 Sq Ft Country Plan with Courtyard

Main image for house plan # 9796

Images/Plans copyrighted by designer. Photos may reflect homeowner modifications.

About House Plan #105-1111

Sq Ft
2212
Sq Ft
Bedrooms
4
Bedrooms
Bathroom
3
Baths
Half Baths
0
Half Baths
Bedrooms
2
Cars
Bedrooms
2
Stories
Bedrooms
61' 0'
Width
Bedrooms
46
Depth
Starting at$575.00What's included
STEP 1Bedrooms
STEP 2Bedrooms
STEP 3Bedrooms

Subtotal:$0
BedroomsBest Price Guaranteed
Plan Collection

How much will it cost to build?

Estimate your costs based on your location and materials.

Free Cost Instant Estimator

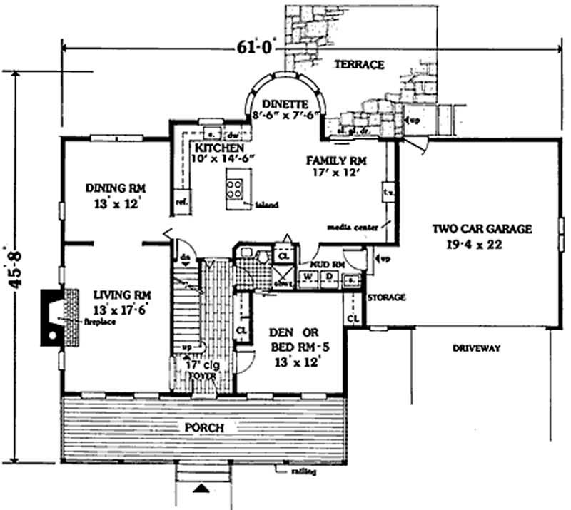
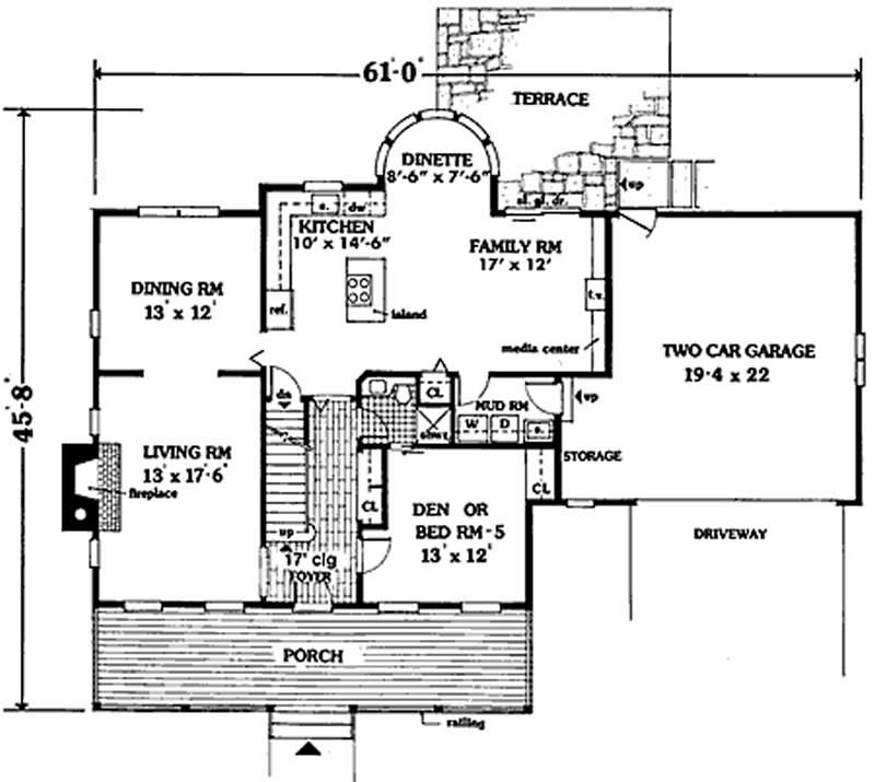
Floor Plans

FLOOR PLAN
FLOOR PLAN
FLOOR PLAN
FLOOR PLAN
Plan Collection

Can I modify this plan?

Yes! This plan can be customized—contact us for a free quote.

House Plan Description

Classic traditional styling is re-created in this home with its columned porch, triple dormers and half-round windows. A large formal space is created with the merging of the living room and the dining room. The living room boasts a fireplace and a view of the front porch. The kitchen features an oversized island cooktop. The sunny dinette is enclosed with a circular glass wall. The family room boasts a media center and access to the rear terrace.

Home Details

Summary
Plan #:105-1111
Starting at:$575.00
Floors:2
Bedrooms:4
Full Baths:3
Half Baths:0
Garage:
Square Footage
Heated Area:2212 Sq. Ft.
First Floor:1223 Sq. Ft.
Second Floor:989 Sq. Ft.
Unheated Area:
Dimensions
Architectural Styles
Exterior Wall Material
Wood Siding
Special Feature
FireplaceDining RoomFamily Room
Garage Type
Attached Garage
Exterior Wall Framing
2x4

What’s Included

Most plan sets include the following:

icon text-secondary-400 includedElevations

icon text-secondary-400 includedSections - Include structural design & specifications

icon text-secondary-400 includedKitchen cabinet elevations

icon text-secondary-400 includedFloor Plan

icon text-secondary-400 includedRoof Plan

icon text-secondary-400 includedTypical wall section

icon text-secondary-400 includedConstruction & Specification notes

icon text-secondary-400 includedSpecial detail sections

icon text-secondary-400 includedPlumbing riser diagram

icon text-secondary-400 includedWindow and door sizes

icon text-secondary-400 includedStructural design joists and beams

icon text-secondary-400 includedElectrical Layout

icon text-secondary-400 includedSpecial Notes

What’s Not Included

These items are  NOT included:

icon text-secondary-400 includedArchitectural or Engineering Stamp - handled locally if required.

icon text-secondary-400 includedSite Plan - handled locally when required.

icon text-secondary-400 includedMechanical Drawings (location of heating and air equipment and ductwork) - your subcontractors handle this.

icon text-secondary-400 includedPlumbing Drawings (drawings showing the actual plumbing pipe sizes and locations) - your subcontractors handle this.

icon text-secondary-400 includedFraming layouts with beam sizes and location

icon text-secondary-400 includedEnergy calculations - handled locally when required.

Related House Plans

Plan Collection
Plan Collection
Plan Collection
Plan#153-1020
Starting at$1350
2373
Sq Ft
2
Story
4
Bed
3
Bath
3
Car
Plan Collection
Plan Collection
Plan Collection
Plan#153-1786
Starting at$1200
2363
Sq Ft
2
Story
4
Bed
3
Bath
2
Car
Plan Collection
Plan Collection
Plan Collection
Plan#178-1096
Starting at$1155
2252
Sq Ft
2
Story
4
Bed
3
Bath
3
Car
View All

Other Plans By This Designer

Plan Collection
Plan Collection
Plan Collection
Plan#105-1105
Starting at$575
2368
Sq Ft
2
Story
5
Bed
3
Bath
2
Car
Plan Collection
Plan Collection
Plan Collection
Plan#105-1052
Starting at$680
2791
Sq Ft
2
Story
4
Bed
2
Bath
3
Car
Plan Collection
Plan Collection
Plan Collection
Plan#105-1045
Starting at$575
2270
Sq Ft
2
Story
4
Bed
2.5
Bath
2
Car