Estimate your costs based on your location and materials.
Yes! This plan can be customized—contact us for a free quote.


Yes! This plan can be customized—contact us for a free quote.
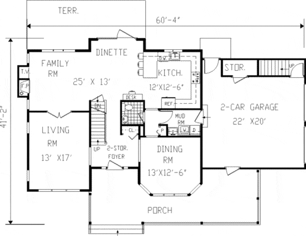
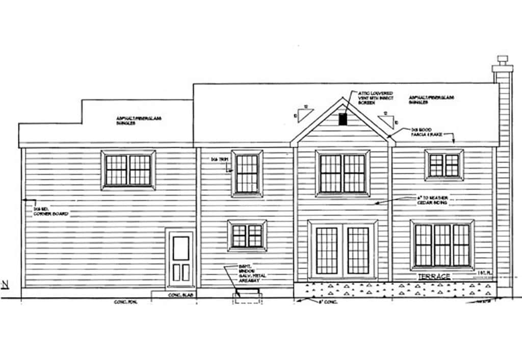
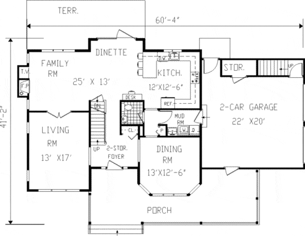
This home's elegant Victorian-style facade introduces this splendid home. A railed, columned front porch, a tower and striking details under the eaves create a storybook feel, welcoming your visitors. The foyer spills into the eating area. The kitchen serves the sunny dinette over a handy snack bar, while the bayed formal dining room offers a view of the front porch. The family room enjoys a built-in fireplace and a TV nook, while through double doors the living room offers windows on two sides. Upstairs, the master bedroom features a walk-in closet and a private bath with dual sinks...
Estimate your costs based on your location and materials.
All sales of house plans, modifications, and other products found on this site are final. No refunds or exchanges can be given once your order has begun the fulfillment process. Please see our Policies for additional information.
All plans offered on ThePlanCollection.com are designed to conform to the local building codes when and where the original plan was drawn.
The homes as shown in photographs and renderings may differ from the actual blueprints. For more detailed information, please review the floor plan images herein carefully.
Estimate your costs based on your location and materials.




