Estimate your costs based on your location and materials.
Yes! This plan can be customized—contact us for a free quote.


Yes! This plan can be customized—contact us for a free quote.
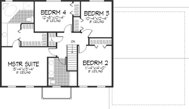
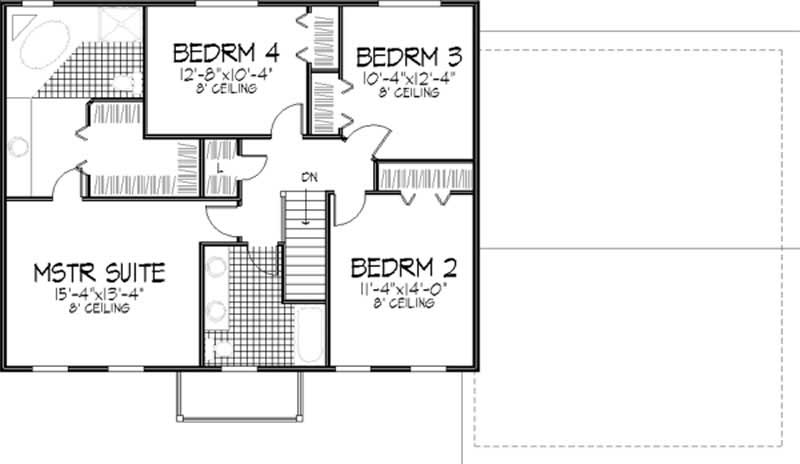
In this traditional Colonial style home, the living and dining rooms flank the foyer, providing an excellent space for formal entertaining. The family room has a bay window and a handsome fireplace. A sun porch off the dinette will be a favorite spot for readers and relaxers alike. Upstairs, the sleeping quarters include three bedrooms and a full bath with a dual-sink vanity in addition to the master suite, which boasts a great garden tub and a spacious walk-in closet.
Estimate your costs based on your location and materials.
All sales of house plans, modifications, and other products found on this site are final. No refunds or exchanges can be given once your order has begun the fulfillment process. Please see our Policies for additional information.
All plans offered on ThePlanCollection.com are designed to conform to the local building codes when and where the original plan was drawn.
The homes as shown in photographs and renderings may differ from the actual blueprints. For more detailed information, please review the floor plan images herein carefully.
Estimate your costs based on your location and materials.




