Estimate your costs based on your location and materials.
Yes! This plan can be customized—contact us for a free quote.

Yes! This plan can be customized—contact us for a free quote.
PLEASE NOTE!! For this designer, The PDF that comes with the PRINT Packages (5 set+PDF and 8 set+PDF) is NOT Modifiable - it is for printing ONLY! PLEASE NOTE!! Optional Foundations (foundations that cost extra money) will take 5-10 business days to complete.
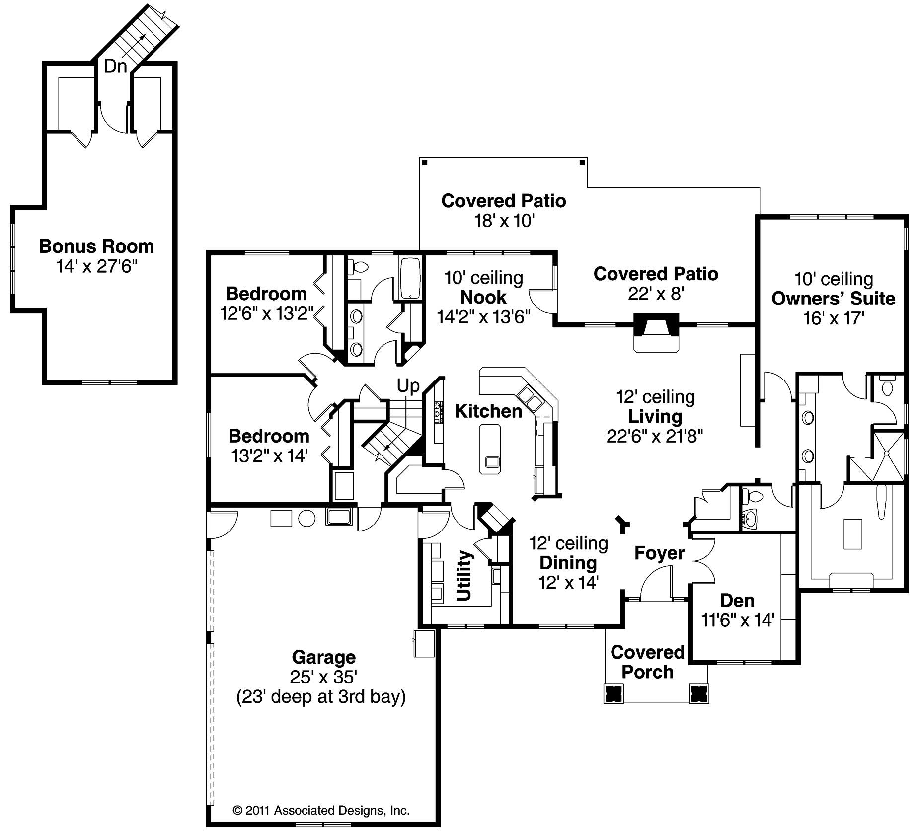
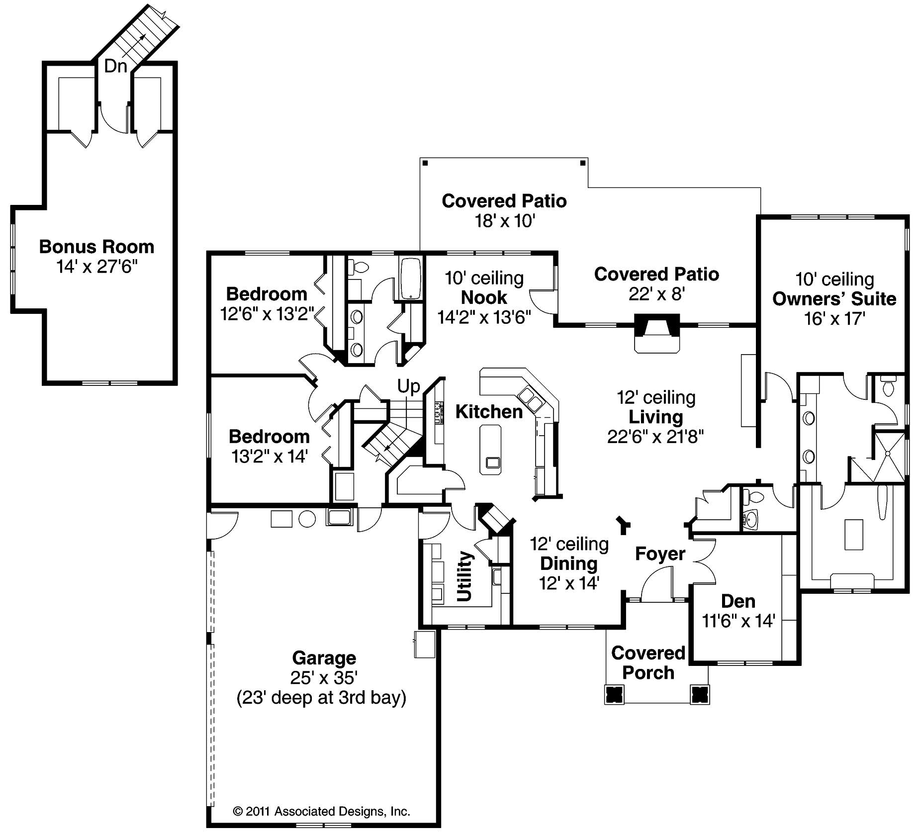
Cottage home plans. Craftsman detailing graces the front facade of this Northwest-inspired cottage home plan. Four informal gathering spaces flow together at the rear, if you count the covered patio. From the kitchen, you can keep an eye on everything. The deluxe owners' suite boasts a private bathroom and a large walk-in closet with a hutch and a bench. The #108-1093 takes its name from one of the great rivers of the Northwest. This cottage would blend in well there, or just about anywhere else. Nearly 3,000 square feet of living space is on the ground floor, while a window-bright...
Estimate your costs based on your location and materials.
All sales of house plans, modifications, and other products found on this site are final. No refunds or exchanges can be given once your order has begun the fulfillment process. Please see our Policies for additional information.
All plans offered on ThePlanCollection.com are designed to conform to the local building codes when and where the original plan was drawn.
The homes as shown in photographs and renderings may differ from the actual blueprints. For more detailed information, please review the floor plan images herein carefully.
Estimate your costs based on your location and materials.


