Estimate your costs based on your location and materials.
Yes! This plan can be customized—contact us for a free quote.





Yes! This plan can be customized—contact us for a free quote.
Please Note: There might be a 4-5 day delay in getting the sales orders out due to updates being made to the designer's plans.
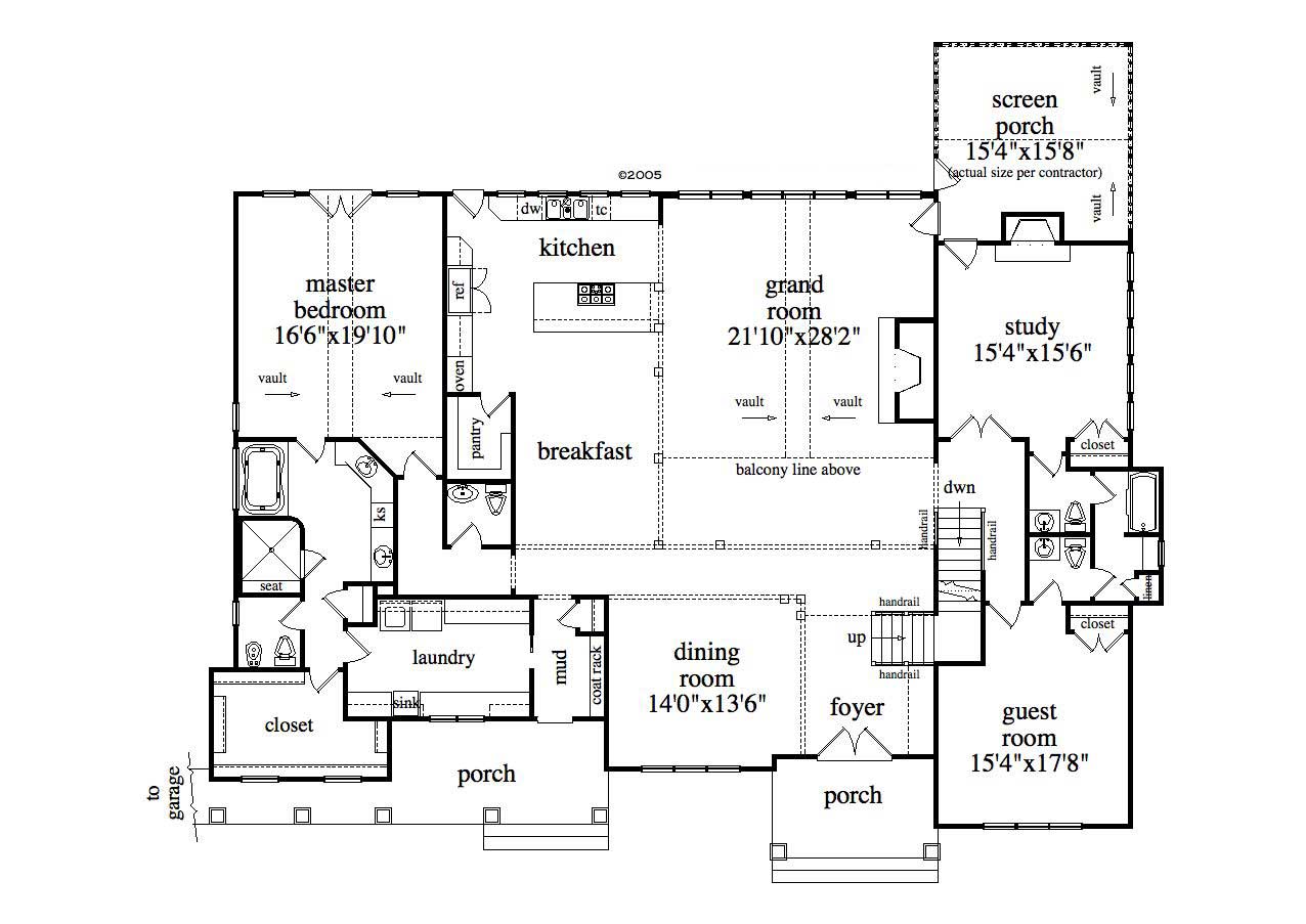
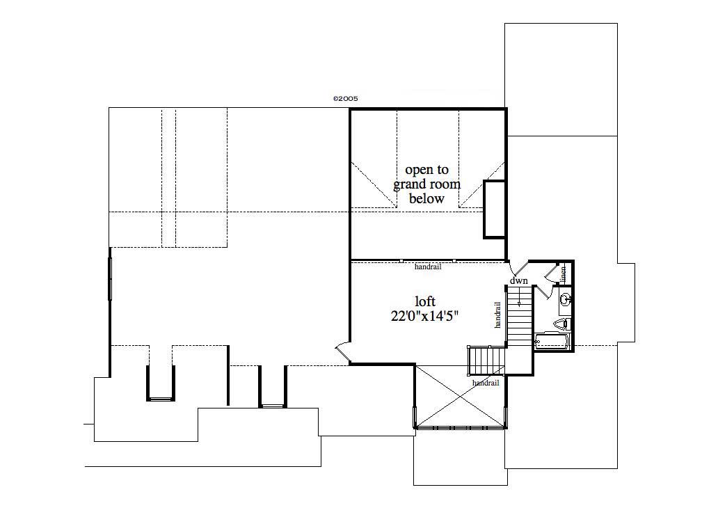
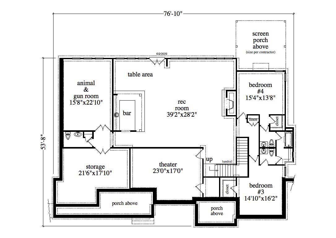
As featured in HGTV's Front Door: This Craftsman style mountain or vacation home plan has a craftsman and a rustic look. The exterior has a detached garage with a breezeway connecting to the house. You will find covered front porches and lots of back decks (dependent upon site conditions) to take advantage of mountain, lake, or golf course views. The inviting floor plan captures your attention with the 2 story grand room and the wall of windows along the back of the house. The master bedroom on the main level is connected to a separate laundry and mudroom for easy...
Estimate your costs based on your location and materials.
All sales of house plans, modifications, and other products found on this site are final. No refunds or exchanges can be given once your order has begun the fulfillment process. Please see our Policies for additional information.
All plans offered on ThePlanCollection.com are designed to conform to the local building codes when and where the original plan was drawn.
The homes as shown in photographs and renderings may differ from the actual blueprints. For more detailed information, please review the floor plan images herein carefully.
Estimate your costs based on your location and materials.














































