Estimate your costs based on your location and materials.
Yes! This plan can be customized—contact us for a free quote.


Yes! This plan can be customized—contact us for a free quote.
Please Note! This designer does NOT ship paper copies to Canada. Please order your plans in electronic format (PDF or CAD)!
USDA Approval is available for this plan. If interested, submit a modification request for a free quote. What is USDA Approval? Certification that a particular house plan meets the housing requirements of the US Department of Agriculture's Rural Housing Service. This is one of the requirements if you intend to apply for a loan through the Rural Housing Service.
To view this floor plan with a basement foundation, please see Plan #141-1277.
To view a similar version of this floor plan with a front entry garage, please see Plan #141-1276.
This home has a nice, clean Craftsman style exterior and an inviting covered porch, but that isn't all! The old adage may say "Don't judge a book by its cover," but one could also argue that you should never judge a house solely based on its exterior facade.
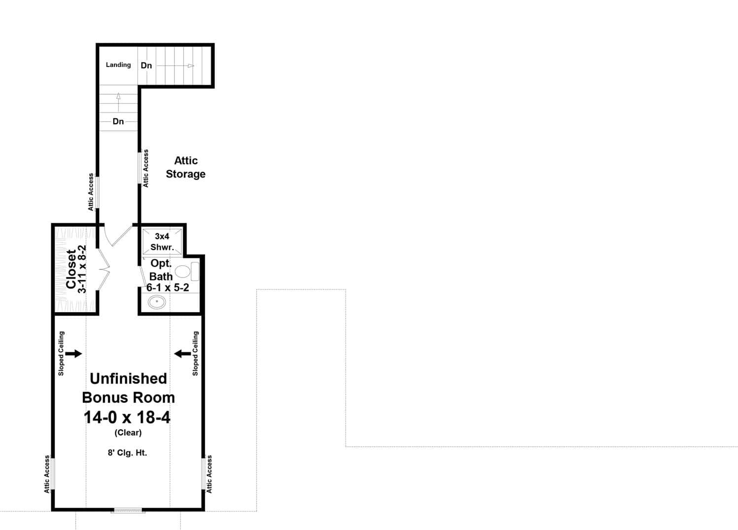
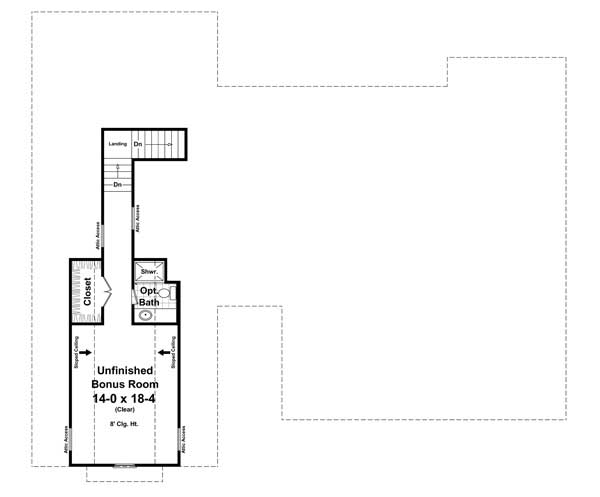
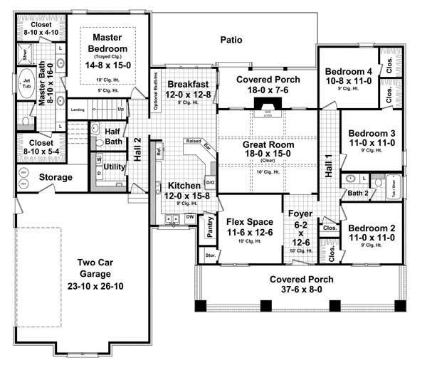
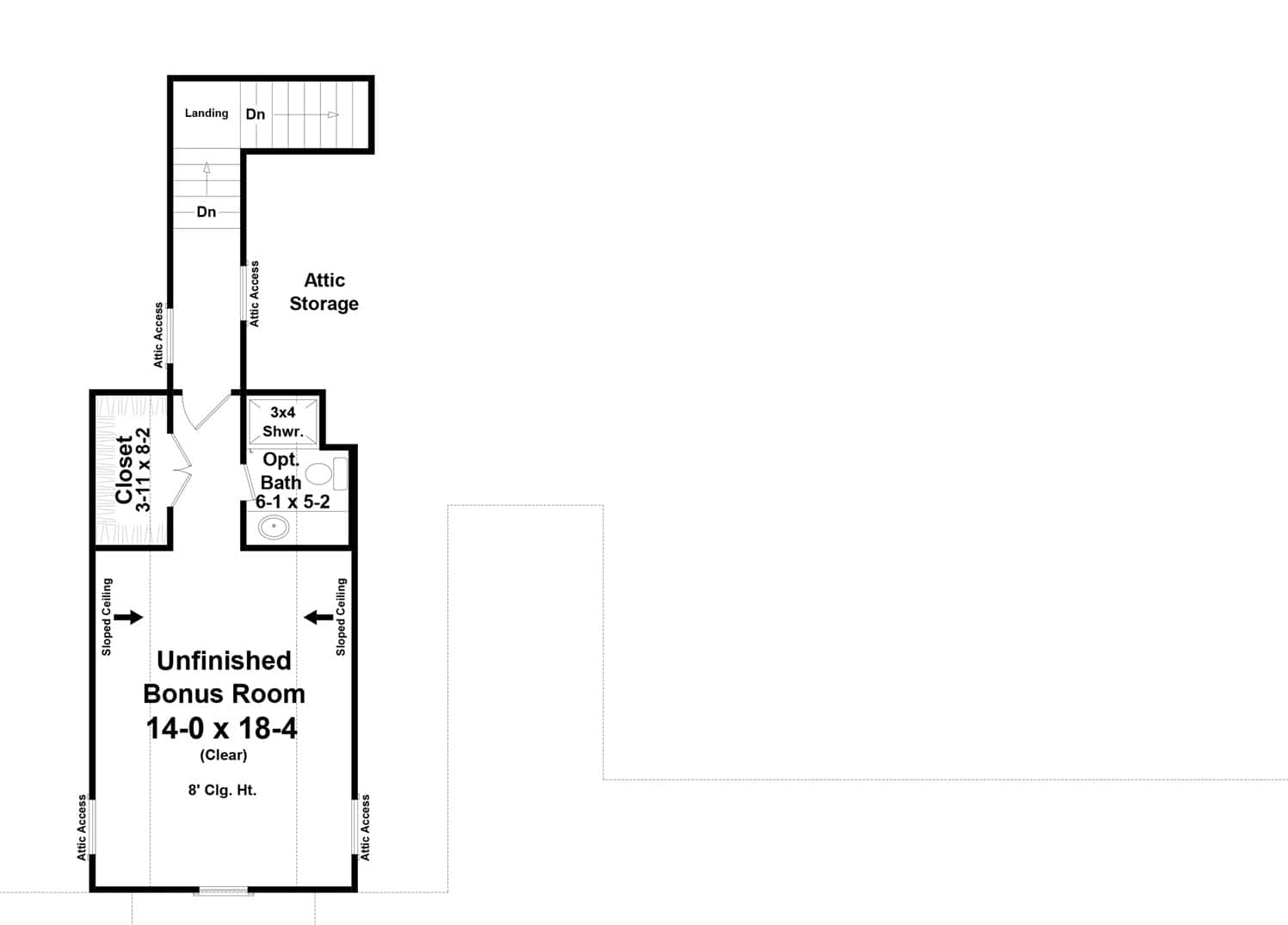
The Great Room is amazing, with its raised ceiling. The fireplace and covered back porch are also a couple of nice features. Some people might really like how the master bedroom is on the opposite side of the house, when compared with the other three bedrooms. That's called a split-bedroom...
Estimate your costs based on your location and materials.
All sales of house plans, modifications, and other products found on this site are final. No refunds or exchanges can be given once your order has begun the fulfillment process. Please see our Policies for additional information.
All plans offered on ThePlanCollection.com are designed to conform to the local building codes when and where the original plan was drawn.
The homes as shown in photographs and renderings may differ from the actual blueprints. For more detailed information, please review the floor plan images herein carefully.
Estimate your costs based on your location and materials.





