Estimate your costs based on your location and materials.
Yes! This plan can be customized—contact us for a free quote.


Yes! This plan can be customized—contact us for a free quote.
The plans by this designer do NOT include framing. PLEASE NOTE: An Unlimited Use License is available for purchase through the designer BUT YOU MUST purchase a CAD package!
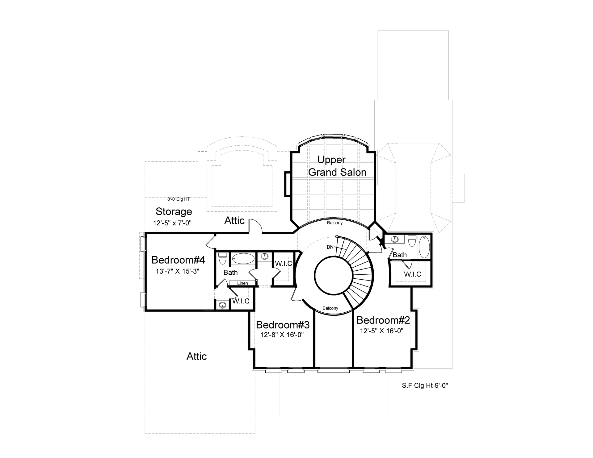
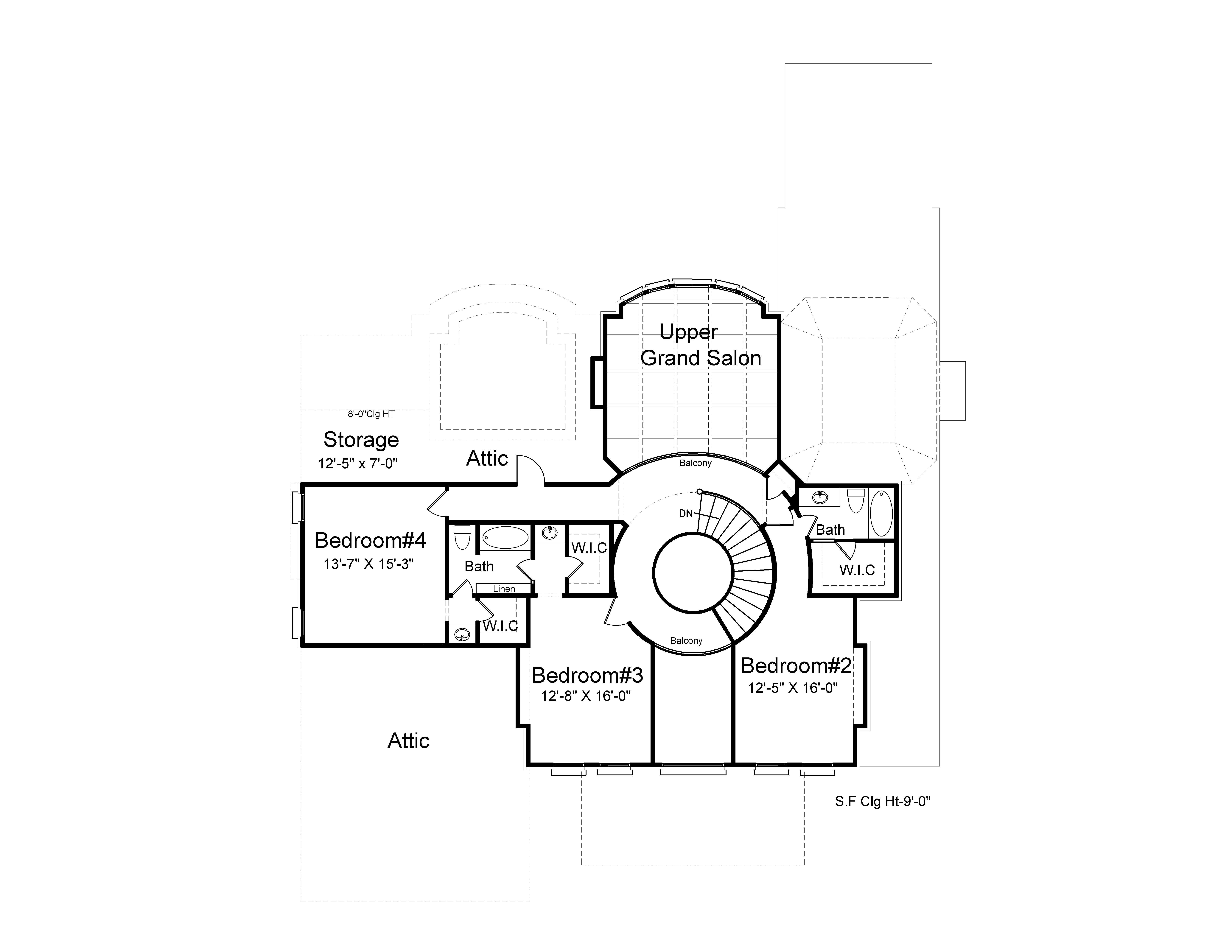
This is a luxury homeplan that seems to offer everything! The arched portico and large columns welcome guests into this Colonial estate home. A large kitchen is perfect for the family who loves to cook--and the island is the perfect way to add convenience and functionality. Find the morning room nestled in a rear-facing bay adjacent to the kitchen, and the dining room is close by as well. A two-story grand salon enjoys access to the rear deck for outdoor living, but also contains a warming fireplace for cool nights. The spiral stairs lead you to three bedrooms with all having access to...
Estimate your costs based on your location and materials.
All sales of house plans, modifications, and other products found on this site are final. No refunds or exchanges can be given once your order has begun the fulfillment process. Please see our Policies for additional information.
All plans offered on ThePlanCollection.com are designed to conform to the local building codes when and where the original plan was drawn.
The homes as shown in photographs and renderings may differ from the actual blueprints. For more detailed information, please review the floor plan images herein carefully.
Estimate your costs based on your location and materials.


