Estimate your costs based on your location and materials.
Yes! This plan can be customized—contact us for a free quote.


Yes! This plan can be customized—contact us for a free quote.
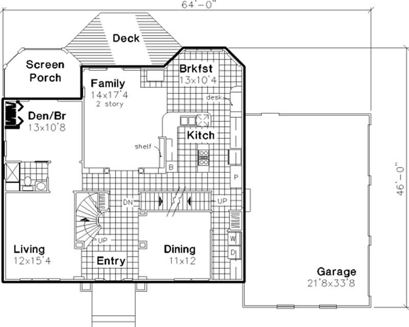
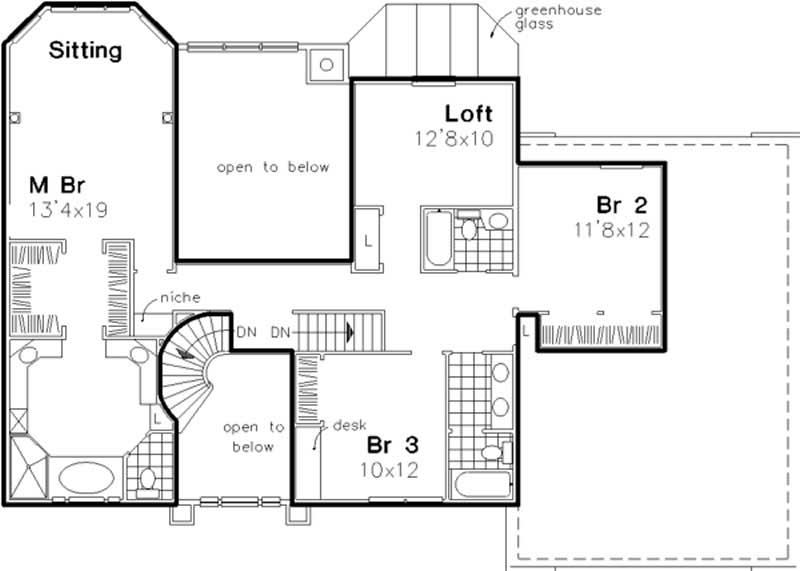
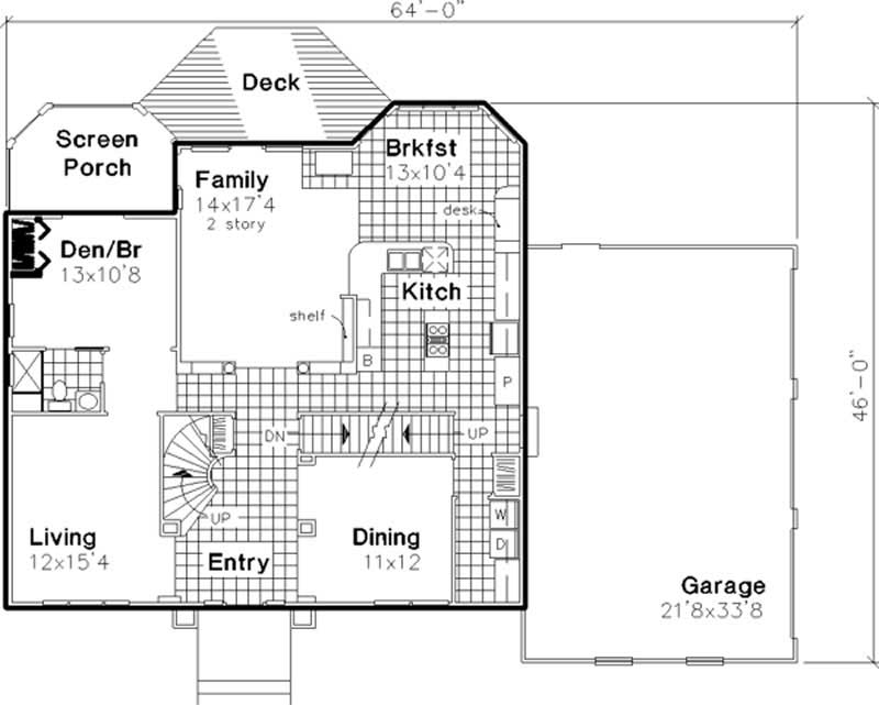
Guests will be impressed by the two-story entry with its classic curved staircase and bridge above, views to the formal living and dining rooms to the left and right, and exciting family room straight ahead. The family room offers a two-story ceiling, rear-oriented window wall, 3-sided fireplace, and access to a screened porch and deck. The island kitchen overlooks the family room and bay windowed breakfast room with built-in desk. The kitchen is easily accessible from the four upstairs bedrooms by a second hidden stair. There is also a main floor den with private 3/4 bath access, perfect for...
Estimate your costs based on your location and materials.
All sales of house plans, modifications, and other products found on this site are final. No refunds or exchanges can be given once your order has begun the fulfillment process. Please see our Policies for additional information.
All plans offered on ThePlanCollection.com are designed to conform to the local building codes when and where the original plan was drawn.
The homes as shown in photographs and renderings may differ from the actual blueprints. For more detailed information, please review the floor plan images herein carefully.
Estimate your costs based on your location and materials.


