Estimate your costs based on your location and materials.
Yes! This plan can be customized—contact us for a free quote.


Yes! This plan can be customized—contact us for a free quote.
PLEASE NOTE: Materials Lists are based on the STOCK plan ONLY without modifications! Custom materials lists are available if you modify a plan. Please ask for a quote.
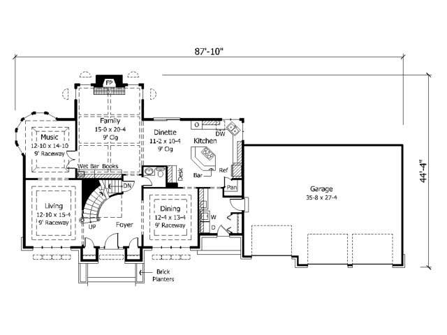
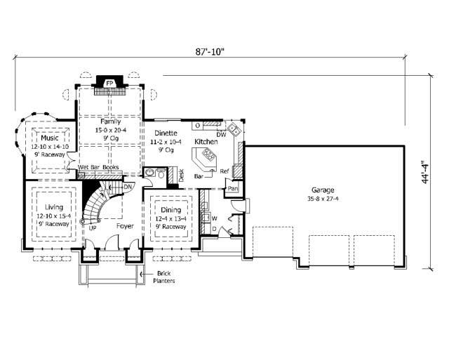
A wall of windows accent the formal living and dining rooms that flank the elegant foyer of this luxurious two-story home. The centerpiece of the first-floor plan, the grand family room with regal hearth and built-in bookshelves and wet bar, is framed by a uniquely shaped music room and the spacious island kitchen's adjoining dinette. The upper-floor master suite enjoys a private, multiple-use bath with whirlpool alcove, built-in TV shelf and large walk-in closet. Three additional bedrooms share a second full bath.
Estimate your costs based on your location and materials.
All sales of house plans, modifications, and other products found on this site are final. No refunds or exchanges can be given once your order has begun the fulfillment process. Please see our Policies for additional information.
All plans offered on ThePlanCollection.com are designed to conform to the local building codes when and where the original plan was drawn.
The homes as shown in photographs and renderings may differ from the actual blueprints. For more detailed information, please review the floor plan images herein carefully.
Estimate your costs based on your location and materials.



