Estimate your costs based on your location and materials.
Yes! This plan can be customized—contact us for a free quote.


Yes! This plan can be customized—contact us for a free quote.
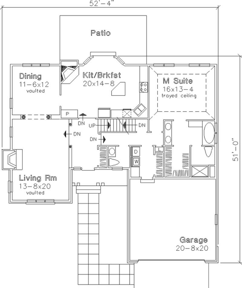
This country home is ideal for retired couples or families with grown children. This one-and-a-half-story home boasts a secluded main-floor master suite. Occupying its own wing, the master suite includes a walk-in closet and a large bath with a dual-sink vanity and a separate shower and toilet. Within easy reach of any location, the warm country kitchen is where you'll spend most of your time. A handy island snack bar, a beautiful breakfast bay and a crackling fireplace are a few of its enticing features. The formal living and dining rooms flow together to the left, each with a vaulted...
Estimate your costs based on your location and materials.
All sales of house plans, modifications, and other products found on this site are final. No refunds or exchanges can be given once your order has begun the fulfillment process. Please see our Policies for additional information.
All plans offered on ThePlanCollection.com are designed to conform to the local building codes when and where the original plan was drawn.
The homes as shown in photographs and renderings may differ from the actual blueprints. For more detailed information, please review the floor plan images herein carefully.
Estimate your costs based on your location and materials.


