Estimate your costs based on your location and materials.
Yes! This plan can be customized—contact us for a free quote.

Yes! This plan can be customized—contact us for a free quote.
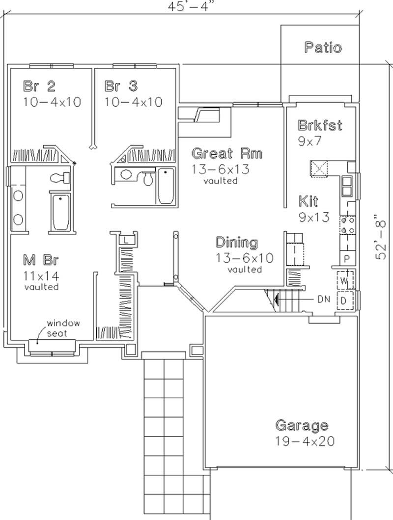
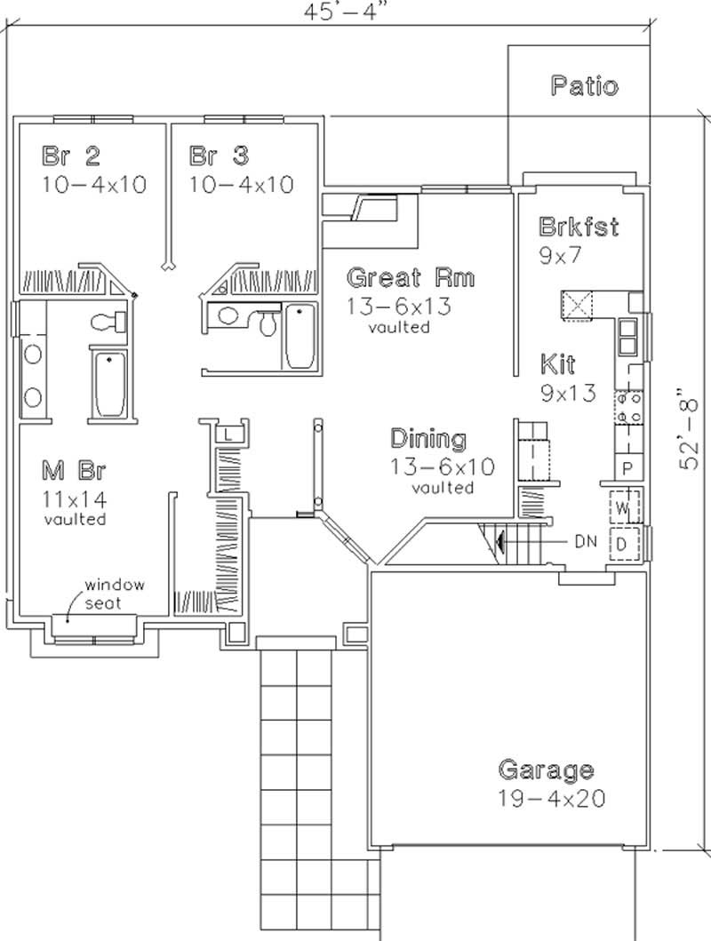
This ranch features a charming master suite. The vaulted ceilings in the formal dining and Great room lend a dramatic feel to this large entertaining expanse. The well-equipped kitchen sports a sunny breakfast room, which features access to a lovely patio. The quiet sleeping wing consists of three bedrooms, the master bedroom includes a charming window seat and private bath.
Estimate your costs based on your location and materials.
All sales of house plans, modifications, and other products found on this site are final. No refunds or exchanges can be given once your order has begun the fulfillment process. Please see our Policies for additional information.
All plans offered on ThePlanCollection.com are designed to conform to the local building codes when and where the original plan was drawn.
The homes as shown in photographs and renderings may differ from the actual blueprints. For more detailed information, please review the floor plan images herein carefully.
Estimate your costs based on your location and materials.

