Estimate your costs based on your location and materials.
Yes! This plan can be customized—contact us for a free quote.


Yes! This plan can be customized—contact us for a free quote.
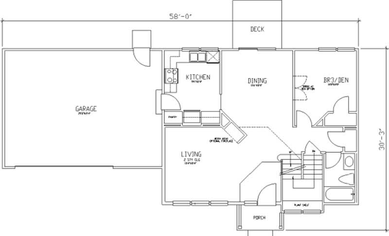
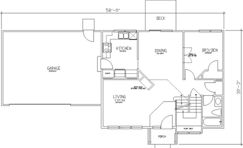
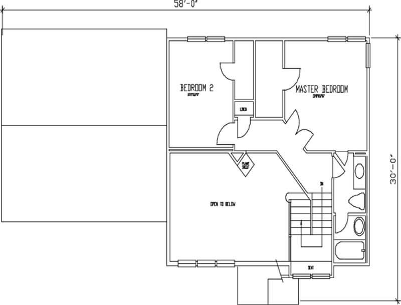
This updated traditional design is easy on your budget with the simplicity of its construction. The spacious living room has a dramatic two-story foyer and an optional cozy fireplace/media niche. The well-equipped kitchen has a handy pantry and easily serves the elegant formal dining room, which overlooks a lovely rear deck. The master suite has a large walk-in closet and a private bath.
Estimate your costs based on your location and materials.
All sales of house plans, modifications, and other products found on this site are final. No refunds or exchanges can be given once your order has begun the fulfillment process. Please see our Policies for additional information.
All plans offered on ThePlanCollection.com are designed to conform to the local building codes when and where the original plan was drawn.
The homes as shown in photographs and renderings may differ from the actual blueprints. For more detailed information, please review the floor plan images herein carefully.
Estimate your costs based on your location and materials.


