Estimate your costs based on your location and materials.
Yes! This plan can be customized—contact us for a free quote.


Yes! This plan can be customized—contact us for a free quote.
CAD files may take up to 3 business days to receive - please contact us for availability.
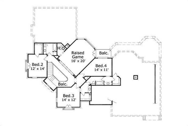
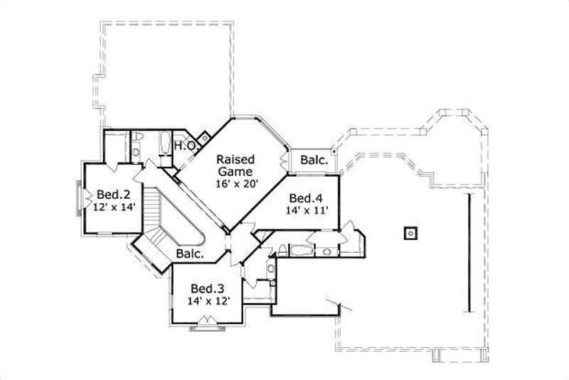
Home Plan #40539 is a two story mediterranean style home with brick and stone exterior as well as 4241 total living square feet. It has 4 bedrooms and 3 baths along with a straight inside load 3 car garage. This house plan has 2 living areas, 2 dining areas, a bar, a computer alcove, a covered pavillion, an exterior balcony, an outdoor shop, a butler pantry, a corner lot, a covered rear porch, a master with sitting area, and a separate master closet.
Estimate your costs based on your location and materials.
All sales of house plans, modifications, and other products found on this site are final. No refunds or exchanges can be given once your order has begun the fulfillment process. Please see our Policies for additional information.
All plans offered on ThePlanCollection.com are designed to conform to the local building codes when and where the original plan was drawn.
The homes as shown in photographs and renderings may differ from the actual blueprints. For more detailed information, please review the floor plan images herein carefully.
Estimate your costs based on your location and materials.


