4-Bedroom, 2787 Sq Ft Country Plan with Walk In Closet

Main image for house plan # 13981

Images/Plans copyrighted by designer. Photos may reflect homeowner modifications.

About House Plan #101-1193

Sq Ft
2787
Sq Ft
Bedrooms
4
Bedrooms
Bathroom
2
Baths
Half Baths
0
Half Baths
Bedrooms
3
Cars
Bedrooms
1
Stories
Bedrooms
50' 0'
Width
Bedrooms
64
Depth
Starting at$1205.00What's included
STEP 1Bedrooms
STEP 2Bedrooms
STEP 3Bedrooms

Subtotal:$0
BedroomsBest Price Guaranteed
Plan Collection

How much will it cost to build?

Estimate your costs based on your location and materials.

Free Cost Instant Estimator

Floor Plans

MAIN FLOOR PLAN
MAIN FLOOR PLAN
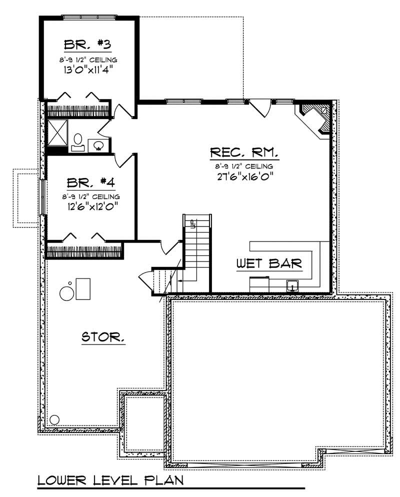
BASEMENT FLOOR PLAN
BASEMENT FLOOR PLAN
Plan Collection

Can I modify this plan?

Yes! This plan can be customized—contact us for a free quote.

House Plan Description

This charming ranch home features many amenities that you would normally expect in a much larger home. This home seems larger than it is because of its open floor plan and vaulted ceilings that all work together to create volume. You’ll love how the breakfast bar from the kitchen overlooks the dining and living rooms making conversation convenient from any room. The corner fireplace in the living room is flanked by a built-in entertainment center making the room classic in its appeal. The master bedroom features a spacious bathroom and large walk-in closet while the second bedroom, located on...

Home Details

Summary
Plan #:101-1193
Starting at:$1205.00
Floors:1
Bedrooms:4
Full Baths:2
Half Baths:0
Garage:
Square Footage
Heated Area:2787 Sq. Ft.
First Floor:1677 Sq. Ft.
Unheated Area:
Basement:1110 Sq. Ft.
Dimensions
Architectural Styles
Exterior Wall Material
Vinyl SidingBrick
Roof Pitch
8/12
Ceiling Height
9 Foot Ceiling
Special Feature
Fireplace
Garage Type
Attached Garage
Exterior Wall Framing
2x6

What’s Included

Most plan sets include the following:

icon text-secondary-400 includedFront, Back & Side Elevations

icon text-secondary-400 includedFloor Plans

icon text-secondary-400 includedElectrical Layout (location of outlets, switches, etc. - it does not have wiring schematics)

icon text-secondary-400 includedRoof Plan (Birdseye view)

icon text-secondary-400 includedFoundation Layout

icon text-secondary-400 includedWall & Stair Sections

icon text-secondary-400 includedCross Section

icon text-secondary-400 includedKitchen Layout

icon text-secondary-400 includedGeneral Notes

What’s Not Included

These items are  NOT included:

icon text-secondary-400 includedArchitectural or Engineering Stamp - handled locally if required.

icon text-secondary-400 includedSite Plan - handled locally when required.

icon text-secondary-400 includedMechanical Drawings (location of heating and air equipment and ductwork) - your subcontractors handle this.

icon text-secondary-400 includedPlumbing Drawings (drawings showing the actual plumbing pipe sizes and locations) - your subcontractors handle this.

icon text-secondary-400 includedFraming layouts with beam sizes and locations.

icon text-secondary-400 includedEnergy calculations - handled locally when required.

Related House Plans

Plan Collection
Plan Collection
Plan Collection
Plan#142-1204
Starting at$1445
2373
Sq Ft
1
Story
4
Bed
2.5
Bath
2
Car
Plan Collection
Plan Collection
Plan Collection
Plan#142-1170
Starting at$1495
2641
Sq Ft
1
Story
4
Bed
2.5
Bath
2
Car
Plan Collection
Plan Collection
Plan Collection
Plan#141-1148
Starting at$1550
2200
Sq Ft
1
Story
4
Bed
2.5
Bath
2
Car
View All

Other Plans By This Designer

Plan Collection
Plan Collection
Plan Collection
Plan#101-1503
Starting at$1090
2098
Sq Ft
2
Story
4
Bed
2
Bath
2
Car
Plan Collection
Plan Collection
Plan Collection
Plan#101-1028
Starting at$1240
3020
Sq Ft
2
Story
4
Bed
2.5
Bath
3
Car
Plan Collection
Plan Collection
Plan Collection
Plan#101-2024
Starting at$1240
3235
Sq Ft
1
Story
5
Bed
3.5
Bath
3
Car