Estimate your costs based on your location and materials.
Yes! This plan can be customized—contact us for a free quote.

Yes! This plan can be customized—contact us for a free quote.
Please Note! This designer does NOT ship paper copies to Canada. Please order your plans in electronic format (PDF or CAD)! USDA Approval is available for this plan. If interested, submit a modification request for a free quote. What is USDA Approval? Certification that a particular house plan meets the housing requirements of the US Department of Agriculture's Rural Housing Service. This is one of the requirements if you intend to apply for a loan through the Rural Housing Service.
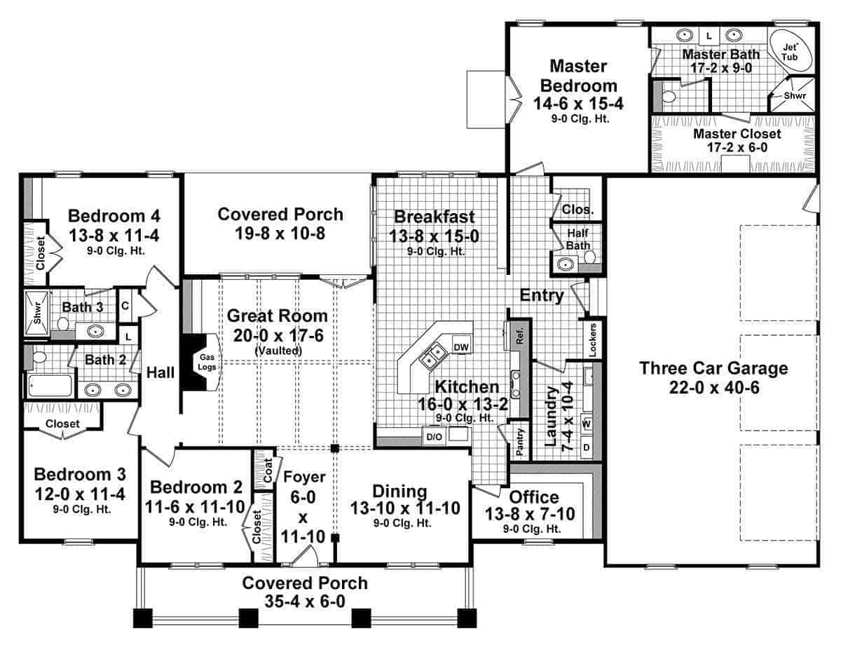
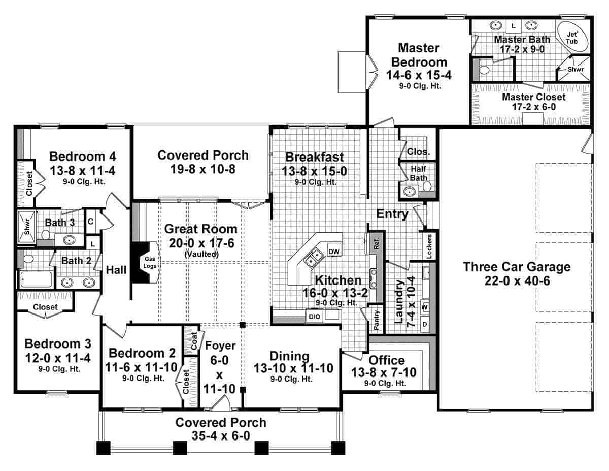
This country ranch house plan is smartly designed both inside and out! The Craftsman revival exterior adds to the curb appeal while the porch is not only attractive but wonderful for relaxing on sunny days.
Inside, the split-bedroom layout maximizes functionality and privacy for a growing family. The entry foyer includes a closet for coats while the formal dining room is more open than often seen. The Great Room is spacious and boasts a vaulted ceiling as well as a gas log fireplace. Steps away are the kitchen island with eating bar and the breakfast area. The kitchen also has a...
Estimate your costs based on your location and materials.
All sales of house plans, modifications, and other products found on this site are final. No refunds or exchanges can be given once your order has begun the fulfillment process. Please see our Policies for additional information.
All plans offered on ThePlanCollection.com are designed to conform to the local building codes when and where the original plan was drawn.
The homes as shown in photographs and renderings may differ from the actual blueprints. For more detailed information, please review the floor plan images herein carefully.
Estimate your costs based on your location and materials.










