2-Bedroom, 1030 Sq Ft Bungalow Plan with Main Floor Master

Main image for house plan # 12625

Images/Plans copyrighted by designer. Photos may reflect homeowner modifications.

About House Plan #157-1151

Sq Ft
1030
Sq Ft
Bedrooms
2
Bedrooms
Bathroom
1
Baths
Half Baths
0
Half Baths
Bedrooms
0
Cars
Bedrooms
1
Stories
Bedrooms
31' 0'
Width
Bedrooms
38
Depth
Starting at$855.00What's included
STEP 1Bedrooms
STEP 2Bedrooms
STEP 3Bedrooms

Subtotal:$0
BedroomsBest Price Guaranteed
Plan Collection

How much will it cost to build?

Estimate your costs based on your location and materials.

Free Cost Instant Estimator

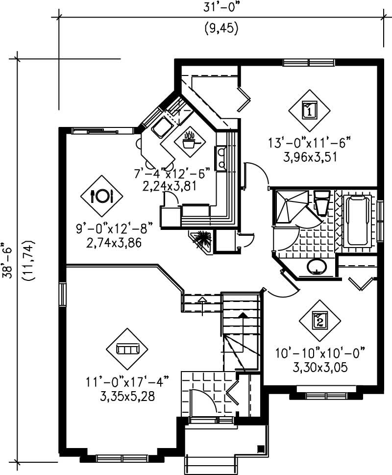
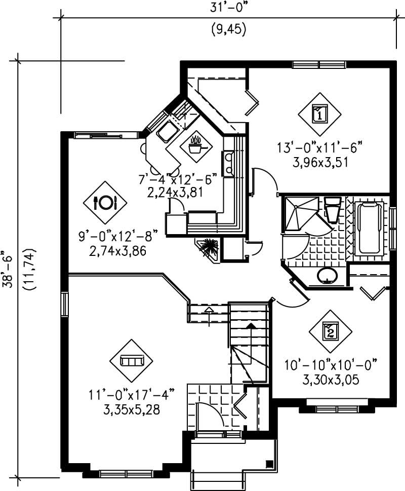
Floor Plans

MAIN FLOOR PLAN
MAIN FLOOR PLAN
Plan Collection

Can I modify this plan?

Yes! This plan can be customized—contact us for a free quote.

Additional Notes from Designer

Please Note that the designer's office will be closed for Christmas and New Year's Day from 12/21/2024 to 1/5/2025, inclusive. Any orders or modification requests submitted during this time will be processed when the designer resumes office on 1/6/2025. This designer doesn't offer electrical layouts with their plans! For our Ontario customers - BCIN is available for this designer's plans. Please submit a modification request to receive a free quote.

House Plan Description

This Bungalow features a small covered porch in the front and a unique niche in the rear. The living room is separated by a small set of stairs from the rest of the home. The master bedroom has a walk-in closet on its side.

Home Details

Summary
Plan #:157-1151
Starting at:$855.00
Floors:1
Bedrooms:2
Full Baths:1
Half Baths:0
Garage:
Square Footage
Heated Area:1030 Sq. Ft.
First Floor:1030 Sq. Ft.
Unheated Area:
Dimensions
Depth:38' 6''
Architectural Styles
Building Lot Type
Narrow Lot Design

What’s Included

Most plan sets include the following:

icon text-secondary-400 includedExterior elevations

icon text-secondary-400 includedFoundation plan

icon text-secondary-400 includedFloor plans

icon text-secondary-400 includedCross sections

icon text-secondary-400 includedStaircase section

icon text-secondary-400 includedRoof truss drawings

icon text-secondary-400 includedSpecifications

icon text-secondary-400 includedConstruction details

icon text-secondary-400 includedSize of structural elements (posts, beams, concrete pads, etc.)

What’s Not Included

These items are  NOT included:

icon text-secondary-400 includedArchitectural or Engineering Stamp - handled locally if required.

icon text-secondary-400 includedSite Plan - handled locally when required.

icon text-secondary-400 includedMechanical Drawings (location of heating and air equipment and ductwork) - your subcontractors handle this.

icon text-secondary-400 includedPlumbing Drawings (drawings showing the actual plumbing pipe sizes and locations) - your subcontractors handle this.

icon text-secondary-400 includedEnergy calculations - handled locally when required.

Related House Plans

Plan Collection
Plan Collection
Plan Collection
Plan#141-1184
Starting at$900
800
Sq Ft
1
Story
2
Bed
1
Bath
0
Car
Plan Collection
Plan Collection
Plan Collection
Plan#109-1010
Starting at$1045
953
Sq Ft
1
Story
2
Bed
1.5
Bath
0
Car
Plan Collection
Plan Collection
Plan Collection
Plan#123-1042
Starting at$990
992
Sq Ft
1
Story
2
Bed
1
Bath
0
Car
View All

Other Plans By This Designer

Plan Collection
Plan Collection
Plan Collection
Plan#157-1148
Starting at$1055
1110
Sq Ft
1
Story
2
Bed
1
Bath
0
Car
Plan Collection
Plan Collection
Plan Collection
Plan#157-1381
Starting at$855
1000
Sq Ft
1
Story
2
Bed
1
Bath
1
Car
Plan Collection
Plan Collection
Plan Collection
Plan#157-1405
Starting at$1350
1820
Sq Ft
2
Story
4
Bed
2
Bath
1
Car