Estimate your costs based on your location and materials.
Yes! This plan can be customized—contact us for a free quote.


Yes! This plan can be customized—contact us for a free quote.
NO Material lists.
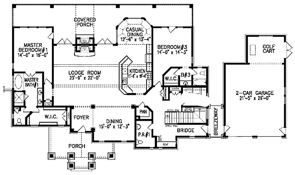
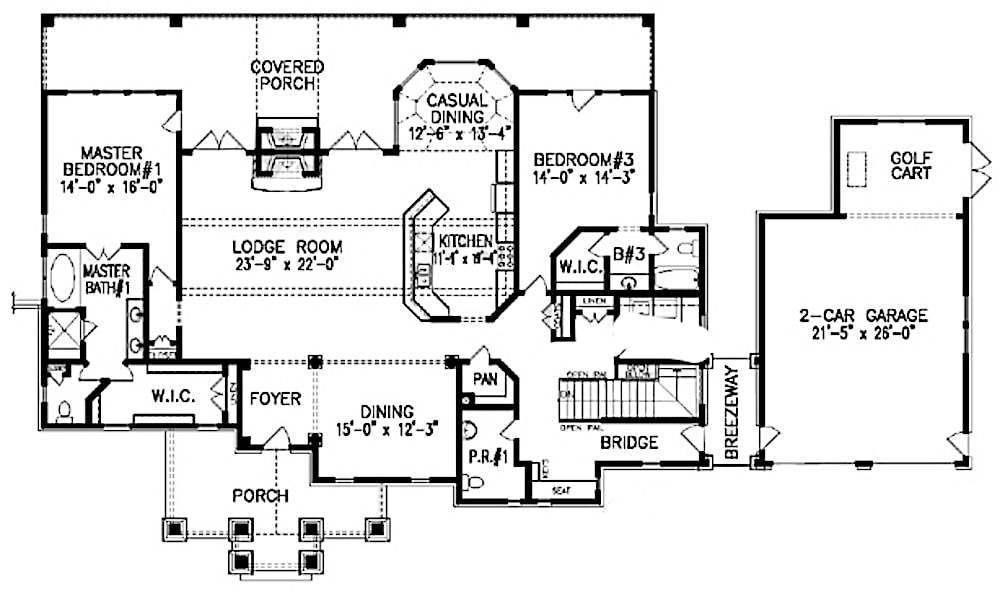
This impressive cottage-inspired Craftsman defines understated luxury. With 4941 living sq ft, four bedrooms, and 4.5 baths, there is plenty of space for entertaining or simply spending time with family. From the front porch, step into the foyer with the semi-open formal dining room just to the right. Straight ahead is the spacious great room (lodge room) with its vaulted ceiling, impressive fireplace, and double french doors leading out to the rear-covered porch. An open-concept kitchen looks out onto the lodge room, divided by a large peninsula with an eating bar. For more informal...
Estimate your costs based on your location and materials.
All sales of house plans, modifications, and other products found on this site are final. No refunds or exchanges can be given once your order has begun the fulfillment process. Please see our Policies for additional information.
All plans offered on ThePlanCollection.com are designed to conform to the local building codes when and where the original plan was drawn.
The homes as shown in photographs and renderings may differ from the actual blueprints. For more detailed information, please review the floor plan images herein carefully.
Estimate your costs based on your location and materials.













