Estimate your costs based on your location and materials.
Yes! This plan can be customized—contact us for a free quote.


Yes! This plan can be customized—contact us for a free quote.
PLEASE NOTE: Materials Lists are based on the STOCK plan ONLY without modifications! Custom materials lists are available if you modify a plan. Please ask for a quote.
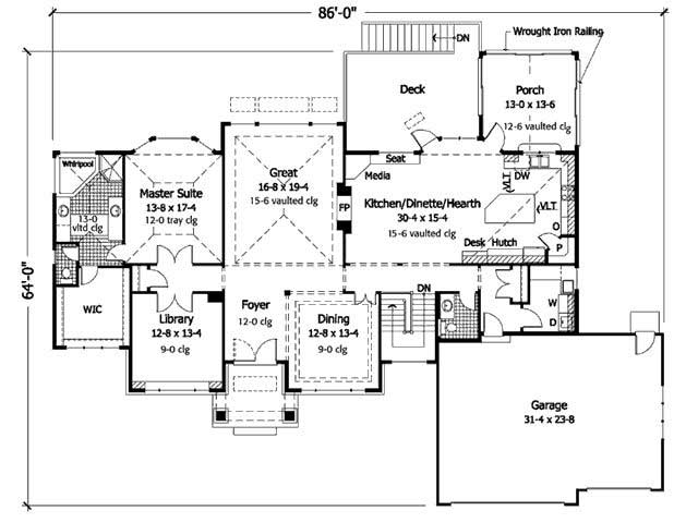
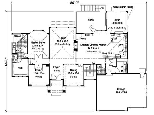
The lower floor of this expansive design boasts a huge rec room, two bedrooms, and a guest suite, and an exercise room. On the main floor, the master suite offers a corner garden whirlpool and a walk-in closet. Right past the library, the central Great Room features a see-through fireplace into the dinette. The island kitchen beyond includes a built-in desk and a formal dining room.
Estimate your costs based on your location and materials.
All sales of house plans, modifications, and other products found on this site are final. No refunds or exchanges can be given once your order has begun the fulfillment process. Please see our Policies for additional information.
All plans offered on ThePlanCollection.com are designed to conform to the local building codes when and where the original plan was drawn.
The homes as shown in photographs and renderings may differ from the actual blueprints. For more detailed information, please review the floor plan images herein carefully.
Estimate your costs based on your location and materials.




