5-Bedroom, 4594 Sq Ft Spanish Plan with Nook/Breakfast Area

Main image for house plan # 15356

Images/Plans copyrighted by designer. Photos may reflect homeowner modifications.

About House Plan #156-1783

Sq Ft
4594
Sq Ft
Bedrooms
5
Bedrooms
Bathroom
5
Baths
Half Baths
0
Half Baths
Bedrooms
3
Cars
Bedrooms
2
Stories
Bedrooms
99' 0'
Width
Bedrooms
88
Depth
Starting at$1200.00What's included
STEP 1Bedrooms
STEP 2Bedrooms
STEP 3Bedrooms

Subtotal:$0
BedroomsBest Price Guaranteed
Plan Collection

How much will it cost to build?

Estimate your costs based on your location and materials.

Free Cost Instant Estimator

Floor Plans

FIRST STORY FLOOR PLAN
FIRST STORY FLOOR PLAN
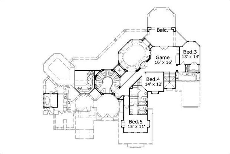
SECOND STORY FLOOR PLAN
SECOND STORY FLOOR PLAN
Plan Collection

Can I modify this plan?

Yes! This plan can be customized—contact us for a free quote.

Additional Notes from Designer

CAD files may take up to 3 business days to receive - please contact us for availability.

House Plan Description

Home plan number 30397 is a two story, Tuscan style home with a total square footage of 4,594. There are 5 bedrooms and 5 and 1/2 bathrooms, along with a split entry, front loading, 3 car garage. The master bedroom includes a sitting area, and seperate closet. Plan number 30397 has a covered rear porch, pavillion, and side porch. It also has interior and exterior balconies. Special features include a cabana bath, entry courtyard, garden court, mezzanine, outdoor kitchen, rotunda, sports closet, two story study, wine closet, portico, and two story family room. Other features include a bar,...

Home Details

Summary
Plan #:156-1783
Starting at:$1200.00
Floors:2
Bedrooms:5
Full Baths:5
Half Baths:0
Garage:
Square Footage
Heated Area:4594 Sq. Ft.
First Floor:3186 Sq. Ft.
Second Floor:1408 Sq. Ft.
Unheated Area:
Dimensions
Ridge Height:33' 0''
Architectural Styles
Exterior Wall Material
StuccoRock/Stone
Ceiling Height
10 Foot Ceiling9 Foot Ceiling
Special Feature
Home OfficeFamily Room
Garage Type
Front Entry
Kitchen Features
Outdoor Kitchen
Porches and Exterior Features
CourtyardCovered Rear Porch

What’s Included

Most plan sets include the following:

icon text-secondary-400 includedExterior,

icon text-secondary-400 includedElevations

icon text-secondary-400 includedFloor Plans

icon text-secondary-400 includedElectrical Layout

icon text-secondary-400 includedBuilding Sections

icon text-secondary-400 includedRoofing Plan

icon text-secondary-400 includedInterior Elevations

icon text-secondary-400 includedGeneral Details

icon text-secondary-400 includedWall Sections

What’s Not Included

These items are  NOT included:

icon text-secondary-400 includedArchitectural or Engineering Stamp - handled locally if required.

icon text-secondary-400 includedSite Plan - handled locally when required.

icon text-secondary-400 includedMechanical Drawings (location of heating and air equipment and ductwork) - your subcontractors handle this.

icon text-secondary-400 includedPlumbing Drawings (drawings showing the actual plumbing pipe sizes and locations) - your subcontractors handle this.

icon text-secondary-400 includedEnergy calculations - handled locally when required.

Related House Plans

Plan Collection
Plan Collection
Plan Collection
Plan#202-1016
Starting at$795
4964
Sq Ft
2
Story
5
Bed
5.5
Bath
3
Car
Plan Collection
Plan Collection
Plan Collection
Plan#135-1015
Starting at$0
5022
Sq Ft
2
Story
5
Bed
5
Bath
4
Car
Plan Collection
Plan Collection
Plan Collection
Plan#107-1215
Starting at$1800
5690
Sq Ft
2
Story
5
Bed
5
Bath
3
Car
View All

Other Plans By This Designer

Plan Collection
Plan Collection
Plan Collection
Plan#156-1456
Starting at$1450
8541
Sq Ft
2
Story
5
Bed
5
Bath
4
Car
Plan Collection
Plan Collection
Plan Collection
Plan#156-1085
Starting at$1100
3900
Sq Ft
2
Story
4
Bed
3.5
Bath
3
Car
Plan Collection
Plan Collection
Plan Collection
Plan#156-1734
Starting at$1700
6775
Sq Ft
2
Story
6
Bed
4.5
Bath
2
Car