Estimate your costs based on your location and materials.
Yes! This plan can be customized—contact us for a free quote.

Yes! This plan can be customized—contact us for a free quote.
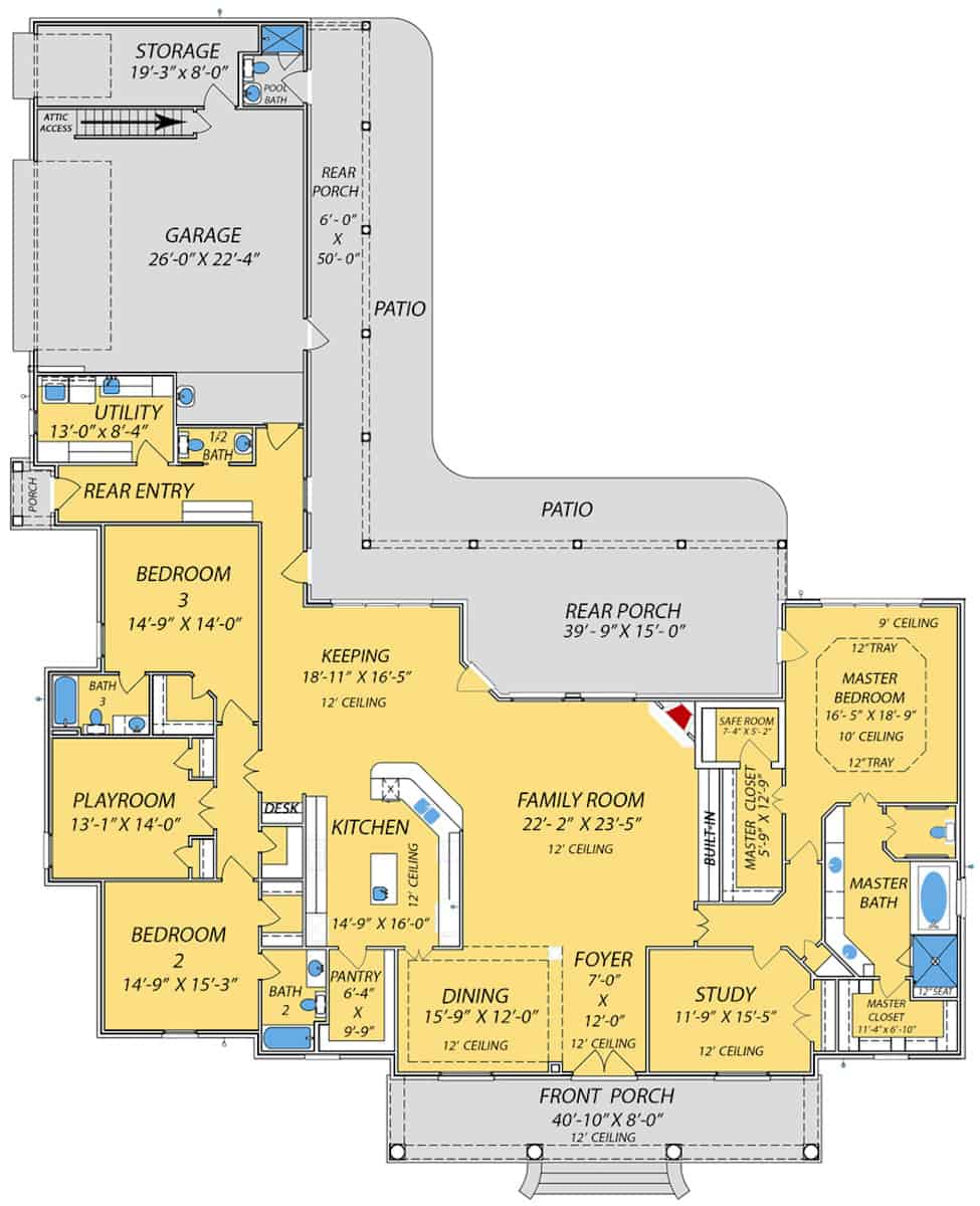
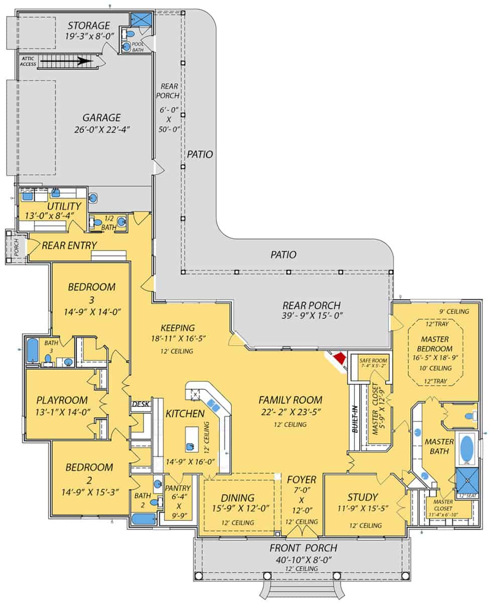
You’ll be amazed by this luxurious Acadian style home, with its stunning features. The capacious design of the home makes it ideal for entertaining and everyday living. The spectacular 1-story home's floor plan has 3860 square feet of heated and cooled living space and includes 3 bedrooms – each with a walk-in closet – plus a playroom that could be a fourth bedroom and a home office, or study.
Estimate your costs based on your location and materials.
All sales of house plans, modifications, and other products found on this site are final. No refunds or exchanges can be given once your order has begun the fulfillment process. Please see our Policies for additional information.
All plans offered on ThePlanCollection.com are designed to conform to the local building codes when and where the original plan was drawn.
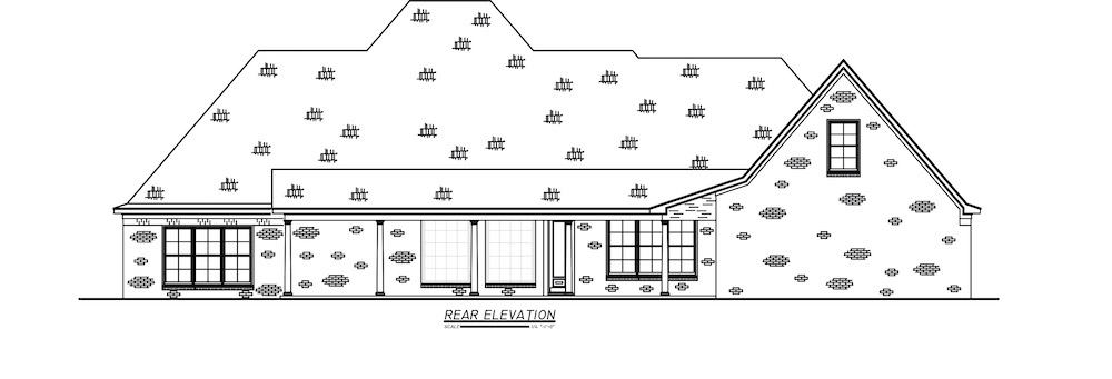
The homes as shown in photographs and renderings may differ from the actual blueprints. For more detailed information, please review the floor plan images herein carefully.
Estimate your costs based on your location and materials.






