Estimate your costs based on your location and materials.
Yes! This plan can be customized—contact us for a free quote.


Yes! This plan can be customized—contact us for a free quote.
Happy Holidays! The designer's office is closed for the holidays until January 1st. All orders, inquiries, and quotes will be completed when the designer resumes office hours on January 1st.
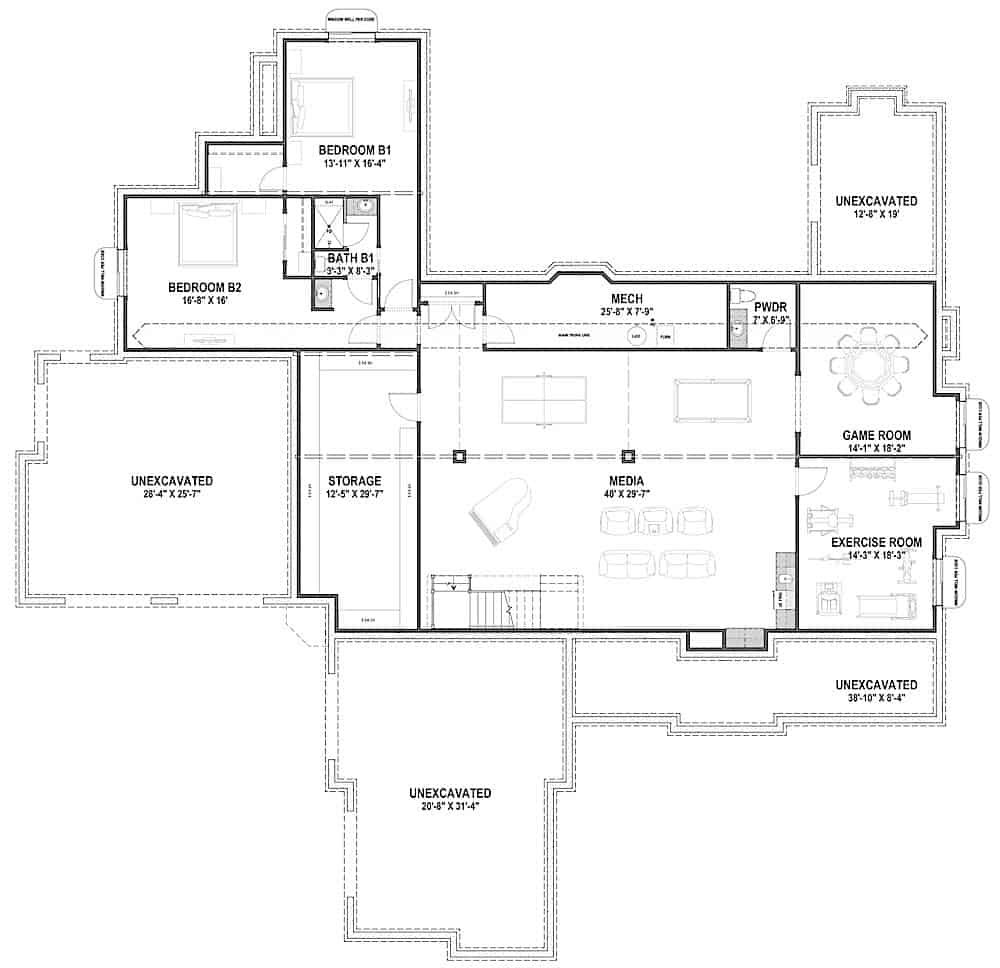
This elegantly designed Transitional-Cottage style home has 3433 square feet of living space with and optional 3539-square-foot basement level available should you choose to finish it (3330 finished square feet and 209 square feet unifished storage)....
Estimate your costs based on your location and materials.
All sales of house plans, modifications, and other products found on this site are final. No refunds or exchanges can be given once your order has begun the fulfillment process. Please see our Policies for additional information.
All plans offered on ThePlanCollection.com are designed to conform to the local building codes when and where the original plan was drawn.
The homes as shown in photographs and renderings may differ from the actual blueprints. For more detailed information, please review the floor plan images herein carefully.
Estimate your costs based on your location and materials.
































