Estimate your costs based on your location and materials.
Yes! This plan can be customized—contact us for a free quote.


Yes! This plan can be customized—contact us for a free quote.
PLEASE NOTE! This designer's plans do NOT come with framing!
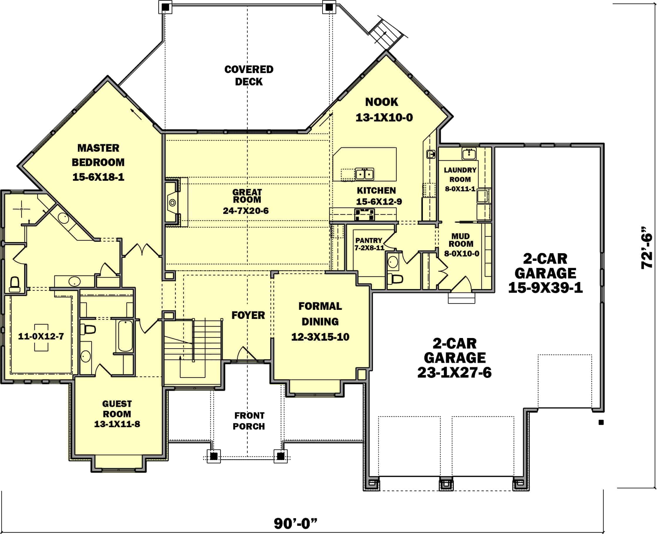
This Rustic Ranch features a well-designed plan that provides high-level living accommodations for you and your loved ones. It has a total heated-and-cooled area of 2861 square feet on the main floor with an optional 1176-square-foot finished basement (for a total of 4037 square feet) that includes an additional 1685 square feet of unfinished storage and mechanical space.
When you approach the house, you'll see a grand covered porch with a highly ornate gable roof that shelters the main entrance. The front door opens to the foyer, which ushers you to...
Estimate your costs based on your location and materials.
All sales of house plans, modifications, and other products found on this site are final. No refunds or exchanges can be given once your order has begun the fulfillment process. Please see our Policies for additional information.
All plans offered on ThePlanCollection.com are designed to conform to the local building codes when and where the original plan was drawn.
The homes as shown in photographs and renderings may differ from the actual blueprints. For more detailed information, please review the floor plan images herein carefully.
Estimate your costs based on your location and materials.


































