Estimate your costs based on your location and materials.
Yes! This plan can be customized—contact us for a free quote.


Yes! This plan can be customized—contact us for a free quote.
PLEASE NOTE!! For this designer, The PDF that comes with the PRINT Packages (5 set+PDF and 8 set+PDF) is NOT Modifiable - it is for printing ONLY! PLEASE NOTE!! Optional Foundations (foundations that cost extra money) will take 5-10 business days to complete.
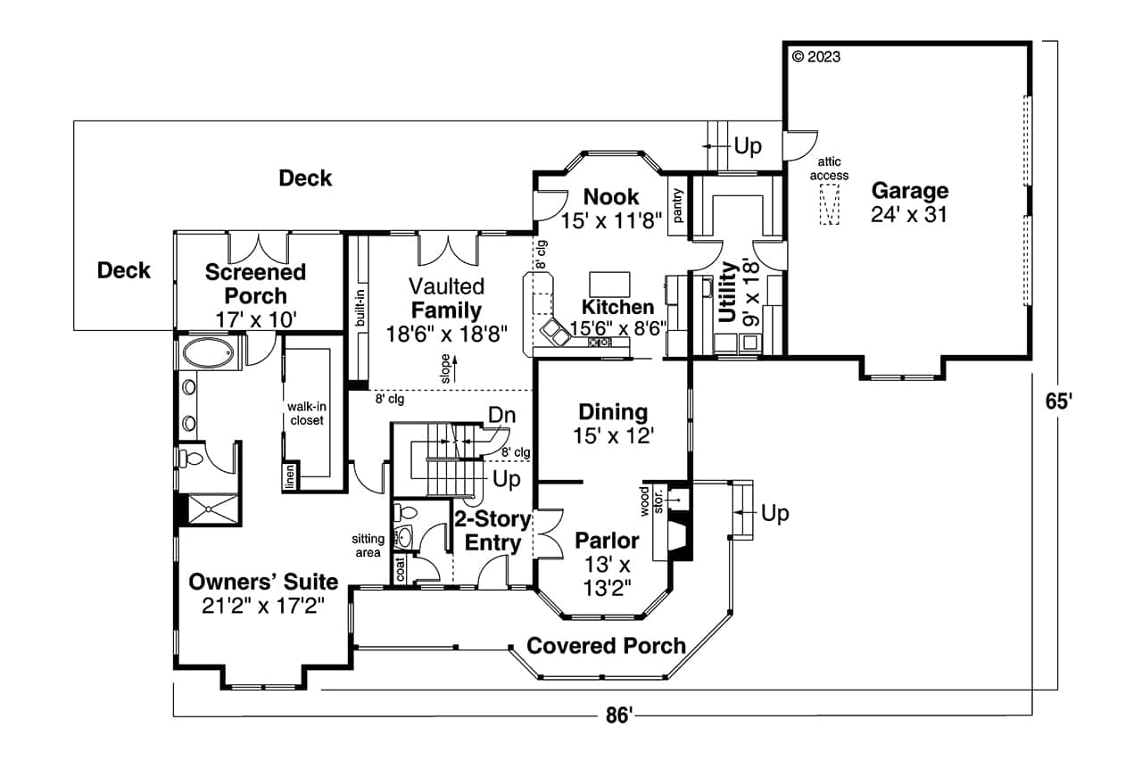
This is a great two story house with 3291 total square feet. It has 4 bedrooms, 3 baths, and a 2 car garage. This plan has siding/stone exterior along with having a 28 ft. roof peak. There are four large, interconnected gathering spaces, formal and informal in this country home. The ramp leading up to the covered wrap around porch offers easy access for wheelchairs. The owners' suite has a sitting area, walk-in closet, and large screened porch.
Estimate your costs based on your location and materials.
All sales of house plans, modifications, and other products found on this site are final. No refunds or exchanges can be given once your order has begun the fulfillment process. Please see our Policies for additional information.
All plans offered on ThePlanCollection.com are designed to conform to the local building codes when and where the original plan was drawn.
The homes as shown in photographs and renderings may differ from the actual blueprints. For more detailed information, please review the floor plan images herein carefully.
Estimate your costs based on your location and materials.






