3-Bedroom, 2875 Sq Ft Craftsman Plan with Kitchen Island

Main image for house plan # 11869

Images/Plans copyrighted by designer. Photos may reflect homeowner modifications.

About House Plan #108-1624

Sq Ft
2875
Sq Ft
Bedrooms
3
Bedrooms
Bathroom
2
Baths
Half Baths
1
Half Baths
Bedrooms
3
Cars
Bedrooms
2
Stories
Bedrooms
71' 0'
Width
Bedrooms
64
Depth
Starting at$1560.00What's included
STEP 1Bedrooms
STEP 2Bedrooms
STEP 3Bedrooms

Subtotal:$0
BedroomsBest Price Guaranteed
Plan Collection

How much will it cost to build?

Estimate your costs based on your location and materials.

Free Cost Instant Estimator

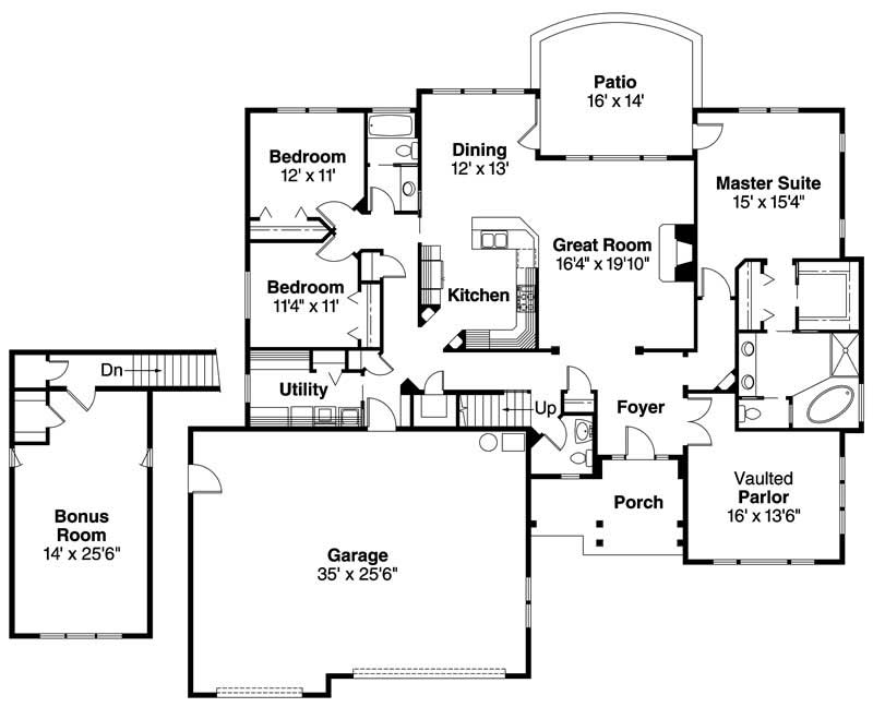
Floor Plans

FLOOR PLANS
FLOOR PLANS
Plan Collection

Can I modify this plan?

Yes! This plan can be customized—contact us for a free quote.

Additional Notes from Designer

PLEASE NOTE!! For this designer, The PDF that comes with the PRINT Packages (5 set+PDF and 8 set+PDF) is NOT Modifiable - it is for printing ONLY! PLEASE NOTE!! Optional Foundations (foundations that cost extra money) will take 5-10 business days to complete.

House Plan Description

This is a two story, craftsman style house plan with 2875 total living square feet. This craftsman home plan has a rustic ambiance, and panoramic rear views. There is naturally bright in the great room that wraps around the large, partially covered patio. The master suite boasts a luxurious bathroom, plus two closets, one a roomy walk-in.

Home Details

Summary
Plan #:108-1624
Starting at:$1560.00
Floors:2
Bedrooms:3
Full Baths:2
Half Baths:1
Garage:
Square Footage
Heated Area:2875 Sq. Ft.
First Floor:2428 Sq. Ft.
Second Floor:447 Sq. Ft.
Unheated Area:
Garage:967 Sq. Ft.
Dimensions
Ridge Height:26-8' 0''
Architectural Styles
Exterior Wall Material
Vinyl SidingRock/Stone
Roof Pitch
6/12
Ceiling Height
9 Foot Ceiling
Garage Type
Attached GarageFront Entry
Fireplaces
One Fireplace
Exterior Wall Framing
2x6

What’s Included

Most plan sets include the following:

icon text-secondary-400 included Artist’s rendering of the home,

icon text-secondary-400 included Front/Rear/Left and Right Elevations,

icon text-secondary-400 included Main floor plan, Second or Basement floor plans (if applicable),

icon text-secondary-400 included Foundation plan and detail,

icon text-secondary-400 included Floor framing plan,

icon text-secondary-400 included Roof framing plan, supporting details and

icon text-secondary-400 included Electric layout.

What’s Not Included

These items are  NOT included:

icon text-secondary-400 includedArchitectural or Engineering Stamp - handled locally if required.

icon text-secondary-400 includedSite Plan - handled locally when required.

icon text-secondary-400 includedMechanical Drawings (location of heating and air equipment and ductwork) - your subcontractors handle this.

icon text-secondary-400 includedPlumbing Drawings (drawings showing the actual plumbing pipe sizes and locations) - your subcontractors handle this.

icon text-secondary-400 includedEnergy calculations - handled locally when required.

Related House Plans

Plan Collection
Plan Collection
Plan Collection
Plan#126-1297
Starting at$1855
2257
Sq Ft
2
Story
3
Bed
2.5
Bath
2
Car
Plan Collection
Plan Collection
Plan Collection
Plan#198-1006
Starting at$2395
2587
Sq Ft
2
Story
3
Bed
2.5
Bath
3
Car
Plan Collection
Plan Collection
Plan Collection
Plan#117-1134
Starting at$1295
2214
Sq Ft
2
Story
3
Bed
2.5
Bath
2
Car
View All

Other Plans By This Designer

Plan Collection
Plan Collection
Plan Collection
Plan#108-1268
Starting at$1510
3384
Sq Ft
1
Story
3
Bed
4.5
Bath
3
Car
Plan Collection
Plan Collection
Plan Collection
Plan#108-1562
Starting at$1765
3537
Sq Ft
1
Story
3
Bed
3
Bath
3
Car
Plan Collection
Plan Collection
Plan Collection
Plan#108-1538
Starting at$690
1216
Sq Ft
2
Story
2
Bed
2
Bath
0
Car