Estimate your costs based on your location and materials.
Yes! This plan can be customized—contact us for a free quote.

Yes! This plan can be customized—contact us for a free quote.
PLEASE NOTE: This plan may take 1-2 weeks to prepare prior to shipment.
The swimming pool is concept-only.
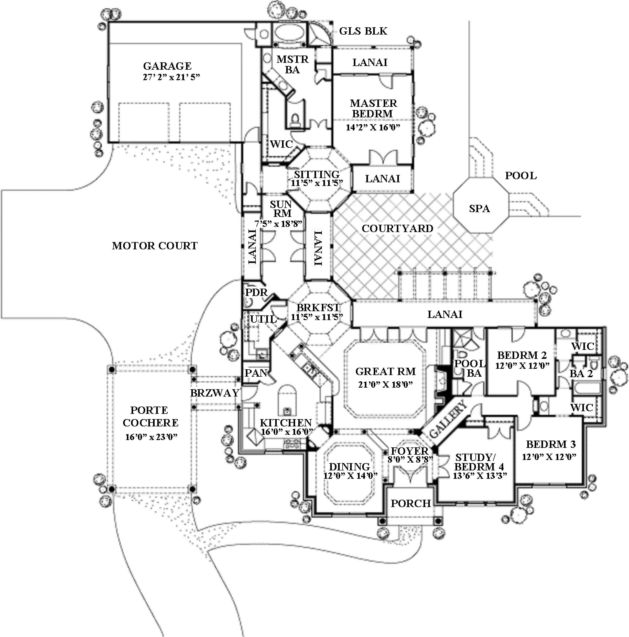
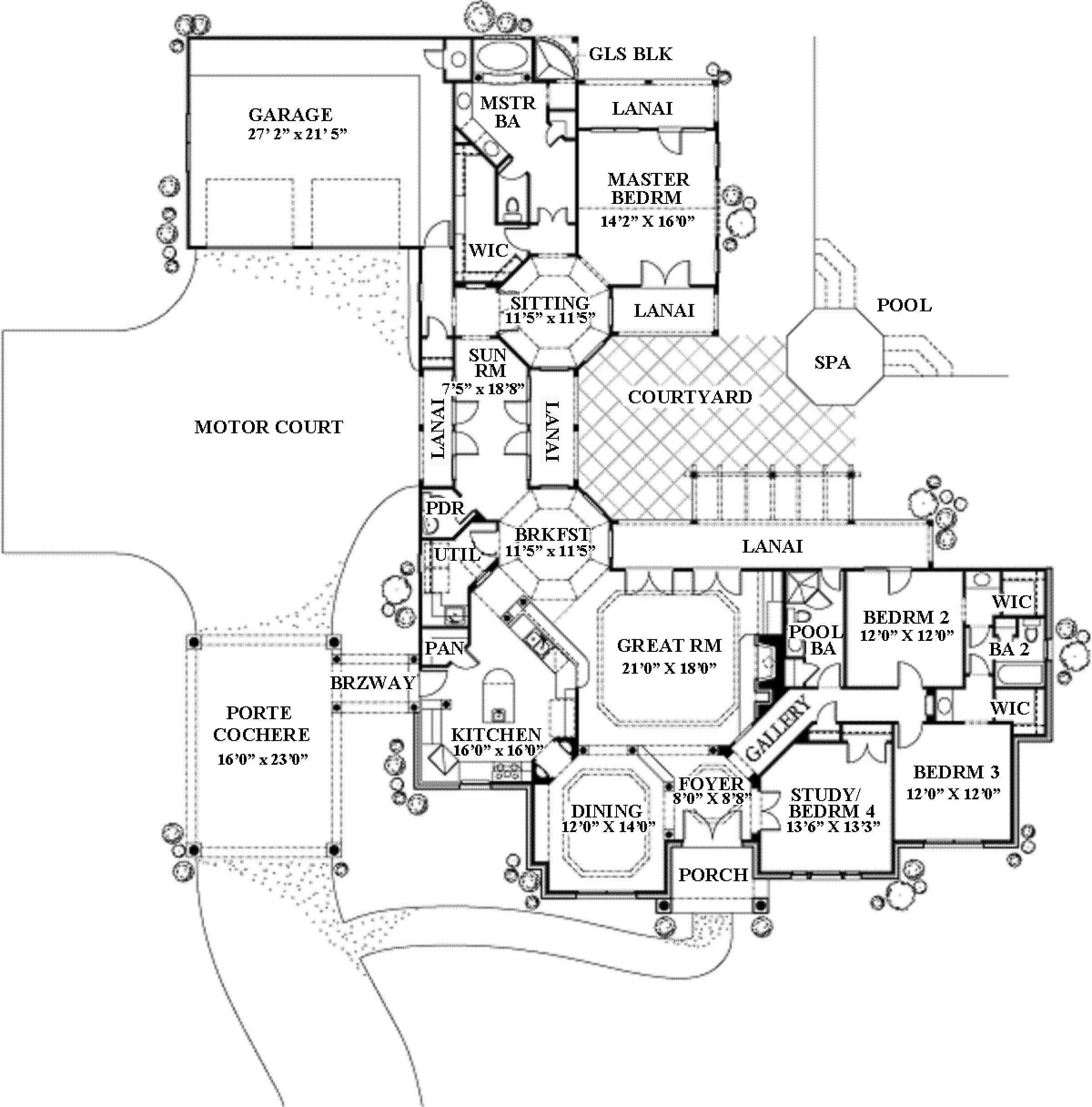
A unique Mediterranean stone and stucco home with a two to three-car garage and a porte cochere at the font. A master suite wing located at the rear forms a courtyard that can be accessed from multiple lanais. The luxury master suite features a cathedral ceiling, a sitting room with a coffered ceiling, columns with an arch over a Jacuzzi tub, and a glass block shower. High stepped ceilings in the great room, the dining room and in the foyer add to the volume of this spacious residence.
Estimate your costs based on your location and materials.
All sales of house plans, modifications, and other products found on this site are final. No refunds or exchanges can be given once your order has begun the fulfillment process. Please see our Policies for additional information.
All plans offered on ThePlanCollection.com are designed to conform to the local building codes when and where the original plan was drawn.
The homes as shown in photographs and renderings may differ from the actual blueprints. For more detailed information, please review the floor plan images herein carefully.
Estimate your costs based on your location and materials.



