Estimate your costs based on your location and materials.
Yes! This plan can be customized—contact us for a free quote.
Yes! This plan can be customized—contact us for a free quote.
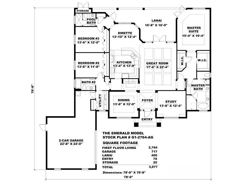
The Emerald house plan leads itself to the Olde Florida style with a modern update. It is a three bedroom, three bathroom home, with the third bathroom easily becoming a pool bath. The kitchen is located in the heart of the home making it perfect for spending time as a family or with your guests for a dinner party. This Mediterranean House Plans special features include: Main Floor Bed & Bath Main Floor Master Split Bedrooms Walk-in Closet Covered front porch Rear covered lanai Side-Entry Garage Extra Storage Den/Home Office Great Room Open floor plan Volume/vaulted ceilings...
Estimate your costs based on your location and materials.
All sales of house plans, modifications, and other products found on this site are final. No refunds or exchanges can be given once your order has begun the fulfillment process. Please see our Policies for additional information.
All plans offered on ThePlanCollection.com are designed to conform to the local building codes when and where the original plan was drawn.
The homes as shown in photographs and renderings may differ from the actual blueprints. For more detailed information, please review the floor plan images herein carefully.
Estimate your costs based on your location and materials.
