Estimate your costs based on your location and materials.
Yes! This plan can be customized—contact us for a free quote.

Yes! This plan can be customized—contact us for a free quote.
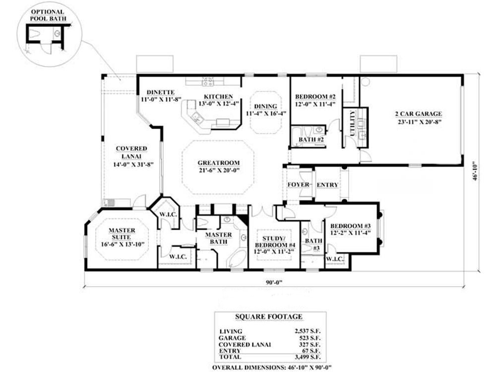
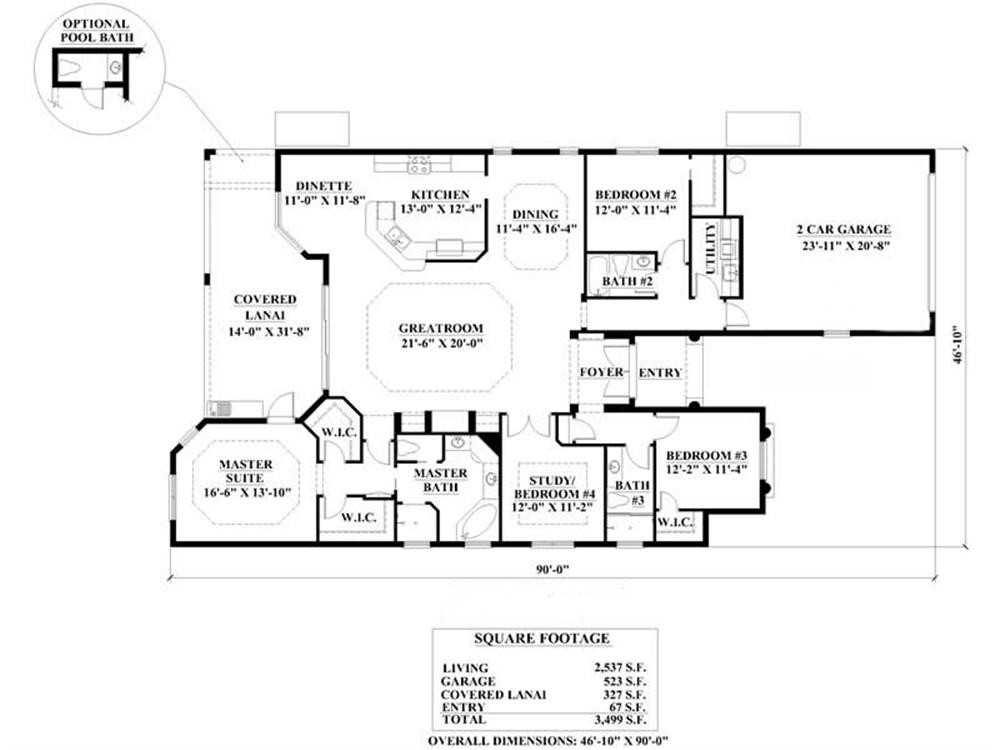
This Concrete Block / ICF Design house plan offers over 2500 sq. ft. in a Mediterranean style home plan with 3 bedrooms (plus a den or 4th bedroom), 3 full baths, and an optional pool bath. The master suite offers two walk-in closets and a spacious master bath. The open floor plan is great for entertaining both inside and out. This house plan is not for sale for use in Collier County, FL, or Lee County, FL, without the consent of the designer. Please contact us if you want to build this plan in those areas.
Estimate your costs based on your location and materials.
All sales of house plans, modifications, and other products found on this site are final. No refunds or exchanges can be given once your order has begun the fulfillment process. Please see our Policies for additional information.
All plans offered on ThePlanCollection.com are designed to conform to the local building codes when and where the original plan was drawn.
The homes as shown in photographs and renderings may differ from the actual blueprints. For more detailed information, please review the floor plan images herein carefully.
Estimate your costs based on your location and materials.











